EasyManua.ls Logo

Sony VPL-EX281 - Page 83

Sony VPL-EX281
88 pages
Print Icon
To Next Page IconTo Next Page
To Next Page IconTo Next Page
To Previous Page IconTo Previous Page
To Previous Page IconTo Previous Page
Loading...
83
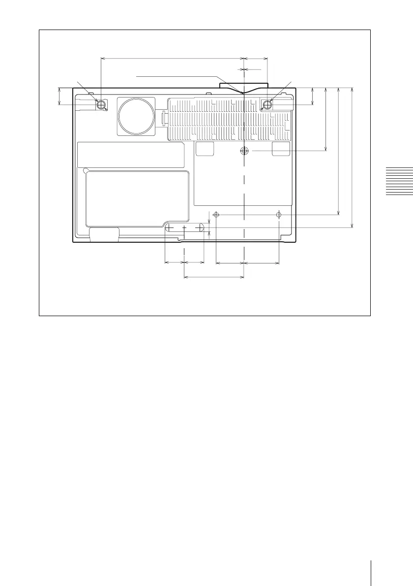
Dimensions
Others
Bottom (VPL-EW245/EX281/EX275/EX271/EX245)
Unit: mm (inches)
233.5 (9
3
/16)
38.5 (1
17
/32)
97.5 (3
27
/32)
0.8 (
1
/32)
14 (
9
/16)
13.5 (
17
/32)
31.8
(1
1
/4)
31.8
(1
1
/4)
57.4
(2
1
/4)
45.3
(1
25
/32)
Center of Lens
14 (
9
/16)
228 (8
31
/32)
207 (8
5
/32)
102.5 (4
1
/32)
27.5 (1
3
/32)
27.5 (1
3
/32)

Table of Contents

Related product manuals