EasyManua.ls Logo

Spirax Sarco 1600V - Faceplate Description and Controls; Function Indicator Overview; Process Variable (PV) Display; Setpoint (SV) Display

Spirax Sarco 1600V
16 pages
Print Icon
To Next Page IconTo Next Page
To Next Page IconTo Next Page
To Previous Page IconTo Previous Page
To Previous Page IconTo Previous Page
Loading...
• Linear (V)
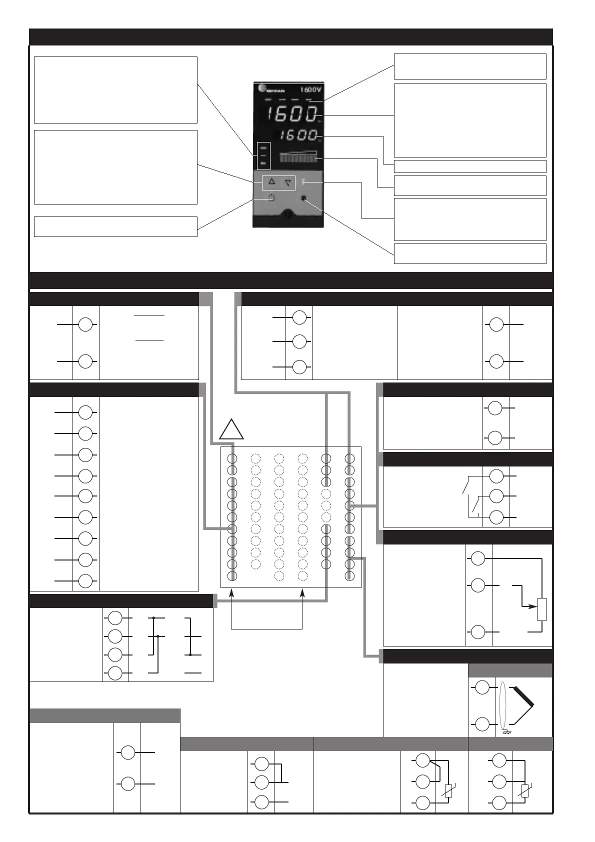
3 • FACEPLATE DESCRIPTION
User configurable generic
output
- 5A/250Vac relay, cosϕ=1
- 11Vdc logic,
Rout = 220 (6V/20mA)
Standard:
100...240Vac/dc ±10%
Optional:
20...27Vac/dc ±10%
50/60Hz, 12VA max
Digital input isolated to
1500V
- NPN 24V, 4,5mA
- PNP 24V, 3,6mA
(12V, 3,6mA)
• Digital inputs
4 • CONNECTIONS
• Outputs
+
-
User configurable generic
output
- 5A/250Vac relay, cosϕ = 1
- 11Vdc logic, Rout = 220
(6V/20mA))
Available thermocouples:
J, K, R, S, T, B, E, N,
Ni-Ni18Mo, L NiCr-CuNi
- Observe polarity
- For extensions, use the
correct compensating cable
for the type of TC used
• Inputs
• TC
2
1
Linear input in dc voltage
0...50mV, 10...50mV,
0...10V, 2...10V
Potentiometer 0...10V
2
1
+
-
8
5
7
14
16
15
17
Out3 (AL1)
IN1
IN2
COM
• Power supply
12
13
~
~
Auxiliary input
isolated 1500V
Current transformer
50mAac, 1,5, 50/60Hz
Remote setpoint
0...20, 4...20mA, 5
0...1V, 0...10V, > 1M
Potentiometer > 500
• Auxiliary inputs
6
5
~
~
• Outputs
User configurable generic
output
analogue output 1500V
(0 ... 10V, 0 ... 20mA,
4 ... 20mA)
11
10
+
-
Out4
(AL2 / HB)
33
31
0V
+W2
Transmitter supply
isolated 1500V
10/24Vdc, max. 30mA
short-circuit protection
9
5
+
-
18
20
19
21
22
Out2 (Close) Out1 (Open)
C
32
+W1
• Transmitter supply
GND
+Vt
1
2
3
4
5
6
7
8
9
10
11
24
25
26
27
28
29
30
31
32
33
22
21
20
19
18
17
16
15
14
13
12
1800 1600
(-) NC
(-) NC
(-) NC
(+) NO
(+) NO
(+) NO
C
C
!
PWR
2
• Pt100 2-wires or PTC
Use wires of adequate
diameter
(min. 1mm
2
)
PT100, JPT100, PTC
• Pt100 3-wires
3
1
2
3
1
2
TT
Linear input in dc
current
0...20mA, 4...20mA
• Linear (I)
4
1
2
-
+
9
Pot
+10V
+ Vt
Gnd
Configurable serial
line isolated to 1500V
Passive current loop
(max. 1200 baud)
RS422/485 or RS232
(optional)
• Serial line
27
26
25
24
-
+
-
+
Tx
Rx
A +
B -
RS485 2-wires
GND
RS232
Tx
Rx
*” key:
Function definited defined by but.2 parameter
Auto/Manual selection:
Function definited defined by “butt” parameter
PV Display:
Indication of process variable
Error Indication: LO, HI, Sbr, Err
LO
= the value of process variable is < di LO_S
HI
= the value of process variable is > di HI_S
Sbr
= faulty sensor or input values higher
than max. limits
Err
= PT100 third wire opened, PTC or input values
lower than min. limits
(i.e.: TC wrong connection)
Function key:
Allows access to the various phases of
configuration •• Confirms the change of set
parameters and browses the next parameter, or
the previous (if Auto/Man key is pressed)
Function indicator
Indicates modes of operation
MAN = OFF (Automatic control)
MAN = ON (Manual control)
AUX = OFF (IN1 = OFF - Local setpoint 1)
AUX = ON (IN1 = ON - Local setpoint 2)
REM = OFF (Local setpoint)
REM = ON (Remote setpoint)
SV display:
Indication of setpoint
Indication of output states:
OUT 1 (Open); OUT 2 (Close);
OUT 3 (AL 1); OUT 4 (HB)
“Raise” and “Lower” keys:
Used to increment (decrement) any numerical
parameter •• The increment (decrement) speed is
proportional to the time the key remains depressed ••
The operation is not cyclic. Once the maximum
(minimum) value of a field is reached, the value will not
change further even if the key is held down
Bargraph:
% indication of a variable defined by the
bArG parameter

Related product manuals