EasyManua.ls Logo

Stuv 30 Compact - The Clean Air Act 1993 and Smoke Control Areas; Recommandations

Stuv 30 Compact
32 pages
Print Icon
To Next Page IconTo Next Page
To Next Page IconTo Next Page
To Previous Page IconTo Previous Page
To Previous Page IconTo Previous Page
Loading...
6
SN 94770 - ...
Stûv 30-compact - installation [en] - 01/13
Recommandations
The Clean Air Act 1993 and Smoke Control Areas
We strongly recommend you entrust
the installation of this Stûv to a
qualified professional who is able to
ensure that the characteristics of the
smoke flue correspond to the stove
installed.
The installation of the stove, its
accessories and surrounding materials
must adhere to all regulations (local
and national) and all standards
(national and European).
Some national and local regulations
require the installation of an access
flap in the connection between the
stove and the smoke flue.
The stove has to be installed in such
a way as to facilitate access to sweep
the stove, the connection duct and
the smoke flue.
Any modification made to the system
may be dangerous and will invalidate
the guarantee.
Under the Clean Air Act local
authorities may declare the whole or
part of the district of the authority
to be a smoke control area. It is
an offence to emit smoke from a
chimney of a building, from a furnace
or from any fixed boiler if located
in a designated smoke control area.
It is also an offence to acquire an
"unauthorised fuel" for use within a
smoke control area unless it is used in
an "exempt" appliance ("exempted"
from the controls which generally
apply in the smoke control area).
The Secretary of State for
Environment, Food and Rural Affairs
has powers under the Act to authorise
smokeless fuels or exempt appliances
for use in smoke control areas in
England. In Scotland and Wales this
power rests with Ministers in the
devolved administrations for those
countries. Separate legislation, the
Clean Air (Northern Ireland) Order
1981, applies in Northern Ireland.
Therefore it is a requirement that fuels
burnt or obtained for use in smoke
control areas have been "authorised"
in Regulations and that appliances
used to burn solid fuel in those areas
(other than "authorised" fuels)
have been exempted by an Order
made and signed by the Secretary
of State or Minister in the devolved
administrations.
Further information on the
requirements of the Clean Air Act can
be found here : http://smokecontrol.
defra.gov.uk/
Your local authority is responsible for
implementing the Clean Air Act 1993
including designation and supervision
of smoke control areas and you can
contact them for details of Clean Air
Act requirements”
The Stûv 30C has been recommended
as suitable for use in smoke control
areas when burning wood.
• Refuelling on to a low fire bed
If there is insufficient burning material
in the firebed to light a new fuel
charge, excessive smoke emission can
occur. Refuelling must be carried out
onto a sufficient quantity of glowing
embers and ash that the new fuel
charge will ignite in a reasonable
period. If there are too few embers in
the fire bed, add suitable kindling to
prevent excessive smoke
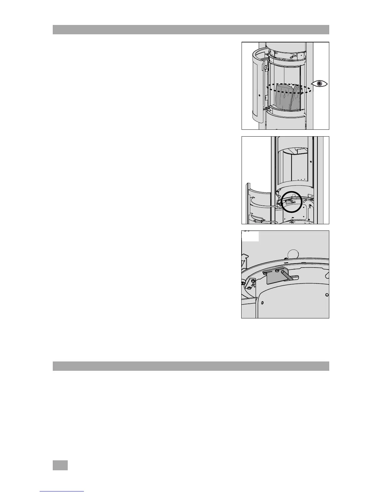
• Fuel overloading
The maximum amount of fuel
specified in this manual should not
be exceeded, overloading can cause
excess smoke.Fuel level must not
exceed the upper line of secondary air
holes in the back of the combustion
chamber [diagram 1].
• Operation with door left open
Operation with the door open can
cause excess smoke. The appliance
must not be operated with the
appliance door left open except as
directed in the instructions.
• Dampers left open
Operation with the air controls or
appliance dampers open can cause
excess smoke. The appliance must
not be operated with air controls,
appliance dampers or door left open
except as directed in the instructions.
• The air valve can not be turned
down lower than the medium
position. There is a physical stop
to prevent closing air valve further.
[diagrams 2 & 3]
1
2
3

Other manuals for Stuv 30 Compact

Related product manuals