EasyManua.ls Logo

Sub-Zero CBBI-36R - Page 27

Sub-Zero CBBI-36R
36 pages
Print Icon
To Next Page IconTo Next Page
To Next Page IconTo Next Page
To Previous Page IconTo Previous Page
To Previous Page IconTo Previous Page
Loading...
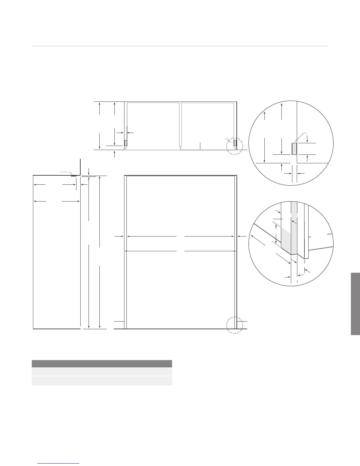
Opening Widths AB
Two 762 mm Models 1518 mm 1581 mm
Two 914 mm Models 1822 mm 1886 mm
IMPORTANT NOTE: Dimensions assume a 19 mm panel
thickness. A dual installation kit will be required for this
installation.
Dual Installations 2
7
Dual Flush Inset Installation Opening Dimensions
6
10
m
m
DEPTH
TO CLEAT
665 mm
FLUSH
INSET
D
EPTH
FRONT VIEW
TOP VIEW
56 m
m
A
WIDTH TO CLEAT
B
FLUSH INSET WIDTH
32
mm
32
mm
SIDE VIEW
2134 mm
FLUSH
INSET
HEIGHT
6 mm
610 mm
D
EPTH TO CLEAT
665 m
m
FLUSH INSET DEPTH
56 m
m
2127 mm
HEIGHT
TO CLEAT
2108 mm
min
CLEAT
O
UTLINE OF
T
WO UNITS WITH
19 mm PANEL
D
ETAIL A
DETAIL B
32 m
m
CLEAT
Detail A
Detail B
32 mm
610 mm
O
PENING
DEPTH
T
O CLEAT
CLEAT
TOP VIEW
665 mm
F
LUSH
INSET
D
EPTH
5
6
m
m
76 mm
typical
610 mm
OPENING
DEPTH TO
CLEAT
56 mm
CLEAT
SHADED
AREA
M
UST BE
F
INISHED
76 mm typical
102 mm
32 mm
Dual Installations
s
ubzerotrade.com

Related product manuals