EasyManua.ls Logo

Subaru WRX 2021 - Fuse Panel Located in the Engine Compartment

Subaru WRX 2021
488 pages
Print Icon
To Next Page IconTo Next Page
To Next Page IconTo Next Page
To Previous Page IconTo Previous Page
To Previous Page IconTo Previous Page
Loading...
(448,1)
北米Model "A1760BE-A" EDITED: 2020/ 10/ 1
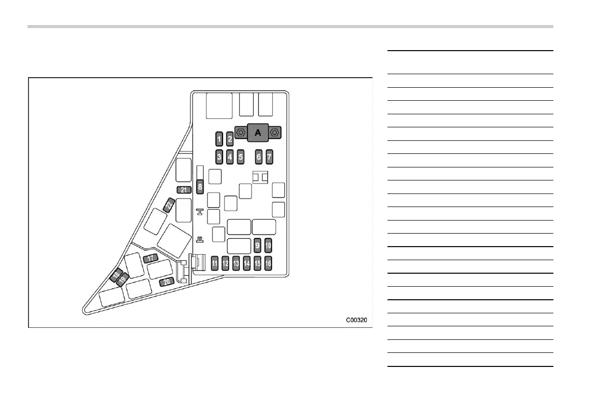
& Fuse panel located in the engine compartment
S12AB02
! STI
S12AB0201
A) Main fuse
Fuse
panel
Fuse
rating
Circuit
1 30 A ABS SOL
2 25 A MAIN FAN
3 25 A SUB FAN
4 Empty
5 25 A AUDIO AMP
6 30 A H/L LO
7 15 A H/L HI
8 20 A BACK UP
9 15 A HORN
10 25 A R.DEF
11 15 A FUEL PUMP
12 10 A (Transmission control unit)
13 7.5 A EGI+B
14 15 A HAZARD
15 15 A LIGHTING
16 7.5 A ALT-S
17 Empty
18 20 A INJ
19 15 A H/L LO RH
20 15 A H/L LO LH
21 10 A AIR CUT
22 7.5 A
(Telematics)
Specifications/Fuses and circuits
12-12

Table of Contents

Other manuals for Subaru WRX 2021

Related product manuals