EasyManua.ls Logo

Sungrow MVS3200-US - Five Safety Rules; Circuit Diagram

Sungrow MVS3200-US
71 pages
Print Icon
To Next Page IconTo Next Page
To Next Page IconTo Next Page
To Previous Page IconTo Previous Page
To Previous Page IconTo Previous Page
Loading...
27
Select optical fibers as the external communication cable to lower the signal
interference.
6.1.2 Five Safety Rules
During electrical connections and other operations on the inside device, observe the
following Five Safety Rules:
Disconnect all the external connections and disconnect the MV Station internal power
supply
Avoid any inadvertent re-connections.
Verify that no voltage or current is present with appropriate testing devices.
Ground and short-circuit whenever necessary.
Cover possible live parts to avoid inadvertent touch.
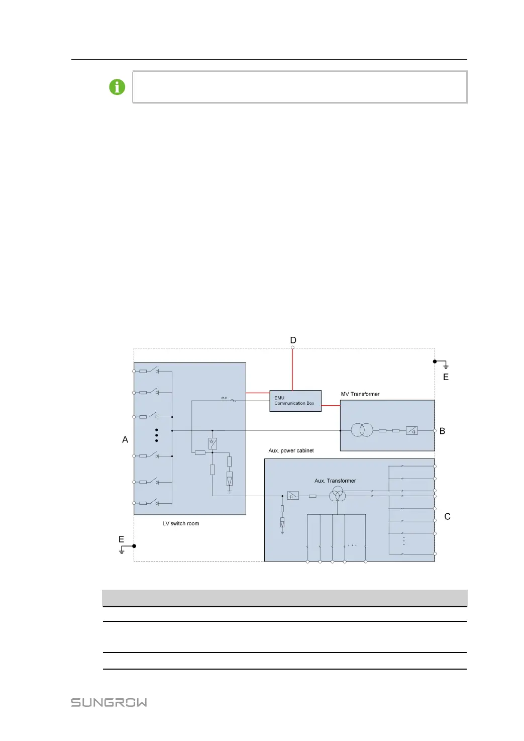
6.2 Circuit Diagram
The circuit diagram is as follows.
table 6-1 Items in figure
Item Name Recommended specifications
A Connect to the inverter Max. 750 kcm aluminum wire
B
Connect to MV grid
Depends on the switchgear type. Specifically,
refer to the corresponding manual.
C Power distribution port
-
System Manual 6 Electrical Installation

Table of Contents

Related product manuals