EasyManua.ls Logo

swaploader SL-520X - Page 24

Default Icon
88 pages
Print Icon
To Next Page IconTo Next Page
To Next Page IconTo Next Page
To Previous Page IconTo Previous Page
To Previous Page IconTo Previous Page
Loading...
SectionII:Installation
2.0.INS.SL-520X
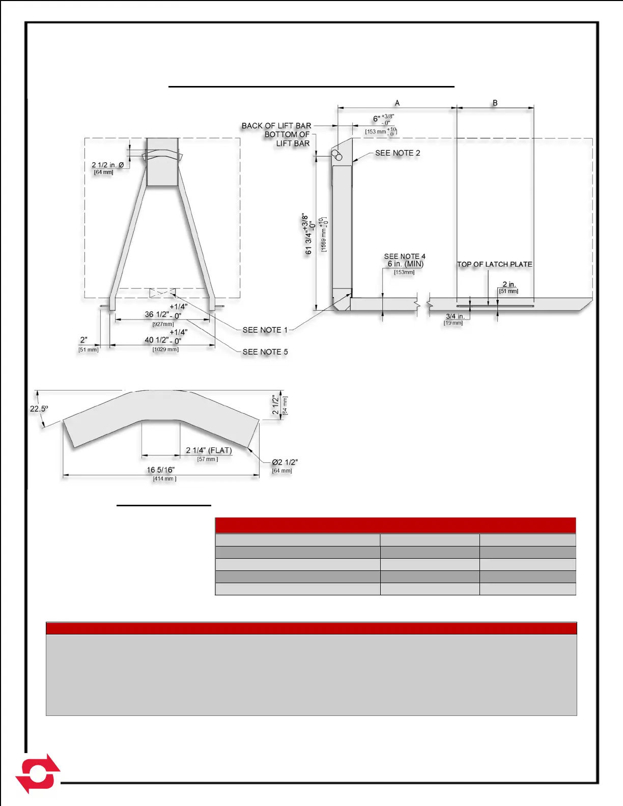
400 SERIES SUB-FRAME CRITICAL DIMENSIONS
LIFT BAR DETAIL
400 SERIES SUB-FRAME DIMENSIONS
HOIST COMPATABILITY A B
SL-412 111 3/4” [2839 mm] 36” [915 mm]
* SL-240/330/400 123 3/4” [3143 mm] 36” [1220 mm]
* SL-220/222/406/518 132 1/8" [3356 mm] 48” [1220 mm]
* SL-520/520X/650 154 1/2” [3925 mm] 48” [1220 mm]
* - May include body lock with shelf assembly. Refer to Note 5.
NOTE:
1.
A STRUCTURAL JIB CONTACT POINT LOCATED AS LOW AS ALLOWABLE ON THE CONTAINER FRONT IS REQUIRED.
2.
WELD HOOK GUARD TO BODY OR ADD STRUCTURAL SUPPORT AS NEEDED FOR THE APPLICATION.
3.
THIS DRAWING PROVIDES THE CRITICAL SUB-FRAME DIMENSIONS FOR COMPATABILITY WITH THE SWAPLOADER HOOK
LIFT HOIST. IT IS THE SUB-FRAME SUPPLIER’S RESPONSIBILITY TO PROVIDE A SUB-FRAME OF SUFFICIENT CAPACITY
WHICH PROPERLY SUPPORTS THE BODY/CONTAINER WHEN USED WITH THE HOOK LIFT HOIST.
4.
SWAPLOADER MANUFACTURED 400 SERIES A-FRAMES REQUIRE A 6 INCH LONGSILL HEIGHT.
5.
MINIMUM DIMENSION ALLOWABLE FOR USE WITH INCLUDED BODY LOCK SHELF ASSEMBLY.
2-12

Related product manuals