EasyManua.ls Logo

Systema K21 - Appliance Electrical Diagrams

Systema K21
40 pages
Print Icon
To Next Page IconTo Next Page
To Next Page IconTo Next Page
To Previous Page IconTo Previous Page
To Previous Page IconTo Previous Page
Loading...
16
Rev. 12GB0712
SYSTEMA S.p.A.
AIRTIGHT GAS CONVECTORS
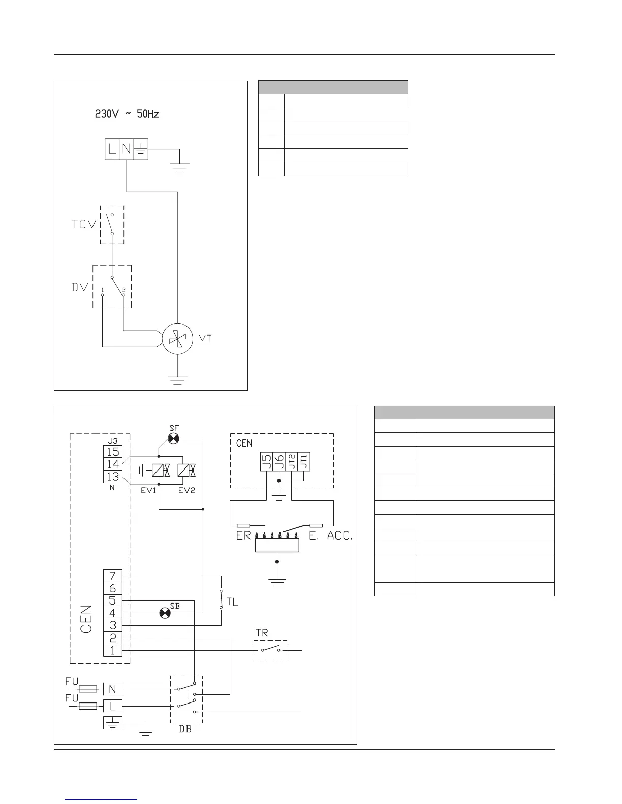
2.9 Schema elettrico apparecchi
Series V wiring diagram
Series E wiring diagram
Draw 8
Draw 9
KEY
L Phase wire
N Neutral wire
W
Ground
DB Bipolar switch
TR Regulation thermostat
SB Lock-out light
SF Operation light
EV1 EV2 Electronic valve
ER Detection electrode
E ACC. Starting electrode
CEN
Imit AC02 or Brahma CM11F
electronic valve
TL Work thermostat
KEY
L Phase wire
N Neutral wire
W
Ground
TCV Fan triggering thermostat
DV Speed change gear
VT Tangential fan

Related product manuals