EasyManua.ls Logo

Taie FY700 - Heater Break Alarm; HBA Operating Conditions

Default Icon
89 pages
Print Icon
To Next Page IconTo Next Page
To Next Page IconTo Next Page
To Previous Page IconTo Previous Page
To Previous Page IconTo Previous Page
Loading...
FY operation manual 44
11.4 Heater Break Alarm
Description
The HBA (Heater-Break-Alarm) function measures the heater current and displays the measured current value on the parameter
HBAC upper area so that the heater status can be monitored at any time.
When it is detected that the heater is disconnected or the heater current is abnormally reduced, an alarm message may be
immediately output to notify the user.
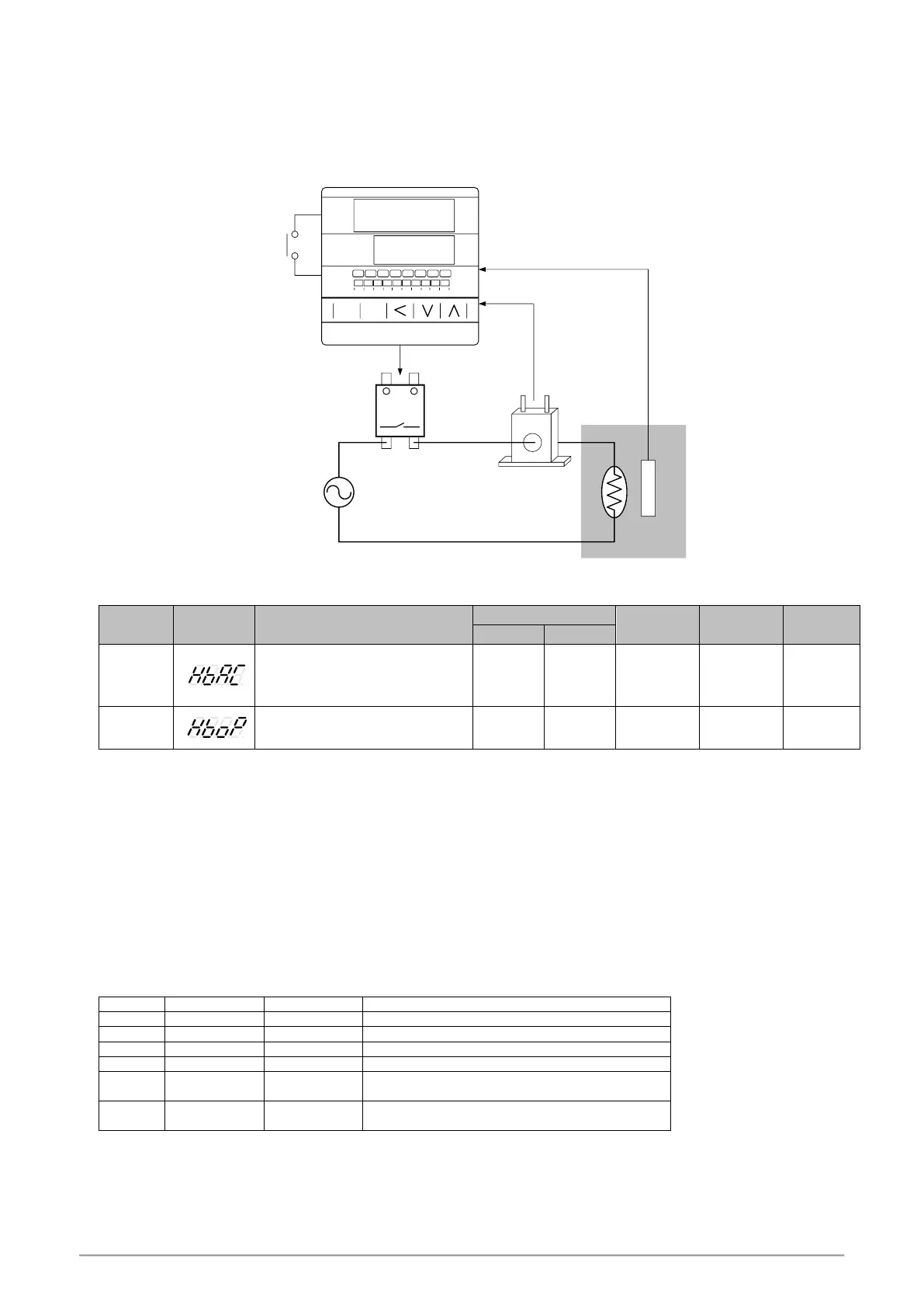
Function Diagram
SSR
-+
Control output
SC 80-T
CT
sensor
Sensor input
AC power
Heater
Electric furnace
HBA alarm
PV
SV
OUT1 %
0 20 40 60 80 100
10.0
SET A/M
TAIE
FY900
OUT1 OUT2 AT AL1 AL2 AL3 M AN P RO
KBA(
Parameter
Parameter
Symbol
Content
Range
Default
Level
Hide/
Display
MAX
MIN
*
HBAC
HBA current setting value
Upper : heater current display
Down : current setting value
unit : ampere(A)
100.0
0.0
1.0
Level 1
INP2=4
&
ALD1=9
HBOP
Output percentage of trigger HBA
100.0
0.0
90.0
Fast
INP2=4
&
ALD1=9
* when ALD1=9 & INP2=4original AL1 become HBAC display
HBA operating conditions
1. Heater current is less than the setting of HBAC
2. OUT1 output exceeds HBOP setting value
3. The conditions of 1 & 2 above are established and continue to exceed 20 seconds
Examples
Heating system with SSR as control element, set HBAC=1.0(down display area)
1. The heater current display value HBAC = 0.0(upper display area), when a heater disconnection occurs
The heater current is less than the set value of HBAC=1.0. At this time ,condition 1 is satisfied.
2. The heater no longer heats when the heater disconnection occurs, and the gap between the PV and SV will become
larger and larger.
The manipulated value of OUT1 is also getting larger and larger, and eventually exceeds 90%. At this time ,condition 2 is
3. Satisfied, alarm_1 will be activated when both 1 & 2 conditions are met and continue for more than 20 seconds.
Parameter setting
Level
Parameter
Set value
Description
1
HBAC
1.0
HBA action current (Unit: A)
Fast
HBOP
90.0
When the output exceeds 90.0%
4
INP2
4
CT current input
3
ALD1
9
HBA Alarm
3
ANL2
-12
Current low-point calibration value
(each controller calibrate value is different)
3
ANH2
0x4527
Current High-point calibration value
(each controller calibrate value is different)

Table of Contents

Other manuals for Taie FY700

Related product manuals