EasyManua.ls Logo

Telefire TSA-1000 - Mounting Recommendations and Instructions; Wiring

Telefire TSA-1000
85 pages
Print Icon
To Next Page IconTo Next Page
To Next Page IconTo Next Page
To Previous Page IconTo Previous Page
To Previous Page IconTo Previous Page
Loading...
TSA-1000
© 2008 2012 Telefire Fire & Gas Detectors Ltd Revision 1.12 האיגש !אצמנ אל הינפהה רוקמ. 2
– Page 38 of 38 –
i
Note
Do not operate the ECD outside the specified limits.
11.2.2 Mounting Recommendations and Instructions
The control panel should be installed in an indoor location, meeting the specified
environmental limits, where it is protected from the elements. Select a location which is
free of smoke, dust or high humidity, and which is distant from sources of electrical
noise, such as high power motors, relays, etc. Avoid locating the control panel in direct
sunlight
Mount the TSA-1000 to a solid wall so it will have comfortable access to connecting the
cables from the input and output devices and maintenance personnel for ongoing
operations and in a location where it is possible to supervise and clearly see the display
and indicators.
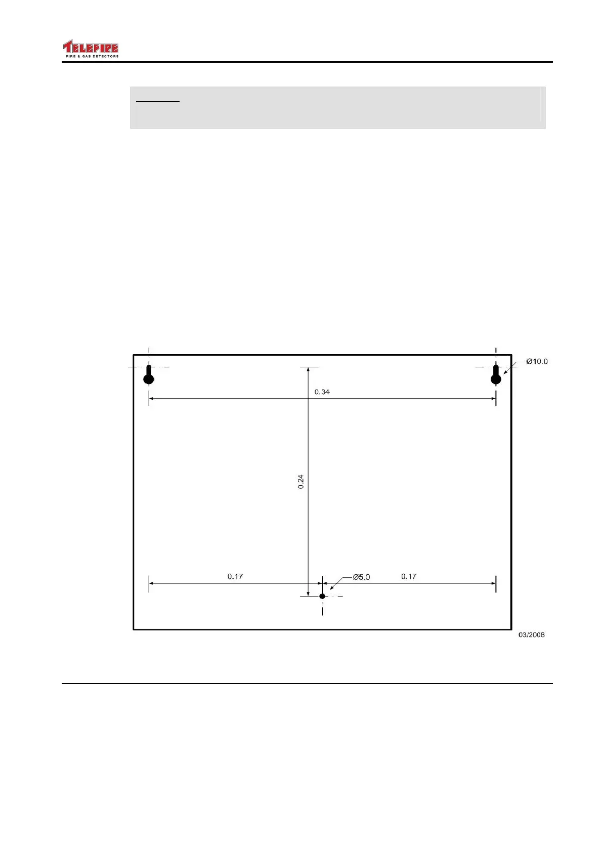
The back of the chassis has 2 sliding slots on the top half and the bottom has a hole for
securing the chassis to the wall.
Drill the hole for mounting using the chassis mounting holes drawing below.
Figure 8 Chassis Mounting Holes
11.3 Wiring
11.3.1 Routing Cables into the ECD and Maintaining the Protection
Level
In order to route power and field wiring into the ECD, the appropriate, partially punched
knockouts must be removed.
Use a hammer and a chisel to open and remove the knockout.

Table of Contents

Related product manuals