EasyManua.ls Logo

Timberwolf TPS35 - Stove Venting Installation Examples; Horizontal Termination (through Wall); Vertical Rise Horizontal Termination (through Wall)

Timberwolf TPS35
48 pages
Print Icon
To Next Page IconTo Next Page
To Next Page IconTo Next Page
To Previous Page IconTo Previous Page
To Previous Page IconTo Previous Page
Loading...
W415-0865 / B / 05.26.11
16
Floor
Protection
12” Minimum
Outside Air
(Recommended)
6”
Minimum
3” Minimum
Wall
Thimble
11 5/8”
5’ Maximum
Wall Thimble
Outside Air
(Recommended)
3”
2”
Floor
Protection
6”
Minimum
11 5/8”
17”
17”
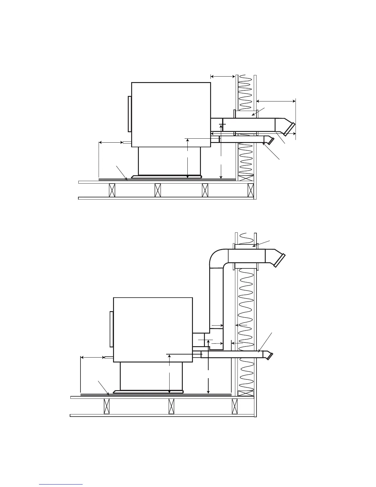
4.6 STOVE VENTING INSTALLATION EXAMPLES
4.6.1 HORIZONTAL TERMINATION (THROUGH WALL)
4.6.2 VERTICAL RISE HORIZONTAL TERMINATION (THROUGH WALL)

Table of Contents