EasyManua.ls Logo

Toa VX-2000 Series - Insulating the VX-200 XI Control and Audio Inputs

Toa VX-2000 Series
328 pages
Print Icon
To Next Page IconTo Next Page
To Next Page IconTo Next Page
To Previous Page IconTo Previous Page
To Previous Page IconTo Previous Page
Loading...
Chapter 8: INSTALLATION AND SETTING PROCEDURES (HARDWARE)
2. VX-2000, VX-200XR, VX-200XI, AND EV-200
8-22
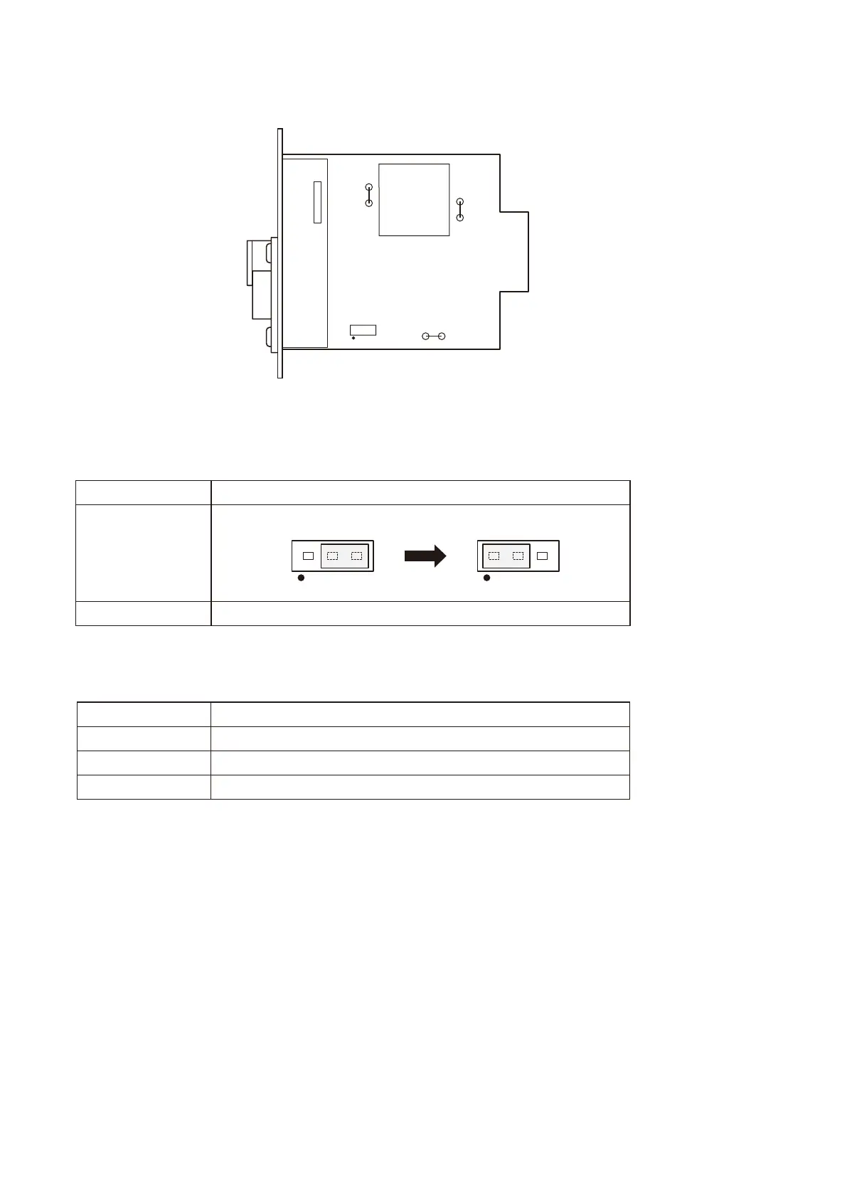
[VX-200XI]
T1
SJP1
SJP2
SJP4
SJP3
2.7. Insulating the VX-200XI Control and Audio Inputs
Because the VX-200XI control input employs photocouplers, the control input can be insulated through the
following settings.
To insulate the audio input, mount the optional transformer IT-450 following the table below.
Factory-preset position
Circuit Symbol Setting
SJP3 Change the short circuit socket position.
SJP4 Cut this jumper.
Circuit Symbol Setting
SJP1 Cut this jumper.
SJP2 Cut this jumper.
T1 Mount and solder the IT-450 transformer.

Table of Contents

Other manuals for Toa VX-2000 Series

Related product manuals