EasyManua.ls Logo

Tormax Automatic Win Drive 2201 - Product Description; System Overview

Tormax Automatic Win Drive 2201
16 pages
Print Icon
To Next Page IconTo Next Page
To Next Page IconTo Next Page
To Previous Page IconTo Previous Page
To Previous Page IconTo Previous Page
Loading...
6 Instructions for Use Win Drive 2201 T-1165 e
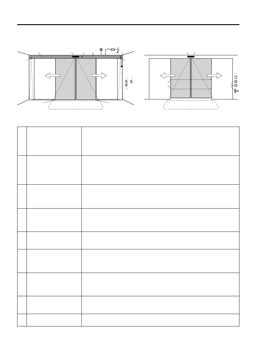
3 Product Description
3.1 System Overview
1 Drive
Cladding
Motor unit
MCU8 control system with monitoring system, power limitation and permanent
diagnosis
Guide system with noise-absorbent guide rail
2 Drive accessories u
£ Lock with
a) £ internal manual activation £ in the cladding £ on the wall
b) £ externalmanualactivation
£ Emergency power supply via the battery unit
£ Mechanical emergency opening
3 Door leaves
a) Moving leaves with main closing edge (HK) and secondary closing edge (NK)
b)Movingleaveswithoorguide
c) £ Side part u
d) £ Protection leaves u as protection for the secondary closing edge
4 Operating controls u
a) £ User interface with 6 operating modes and fault indication
b) £ Operating mode switch with 3 positions.
c) £ Lock for the user interface
d) £ Remote control of operating modes
5 Internal activators
a) With automatic activation b) With manual activation
£Radarwith/withoutdirectionrecognition £ Push button
£ IR motion detector £ Contact-free button
6 External activators
a) With automatic activation b) With manual activation
£ Radarwith/withoutdirectionrecognition £ Key switch
£ IR motion detector £ Card reader
£ Remote control
7 Safety sensors
a) £ Presence sensor: main closing edge protection
b) £ Presencesensor,external:mainclosingedgeprotection
c) £ Safety beams
d) £ Presence sensors: secondary closing edge protection
8 Emergency systems
a) £ Powerswitch/fuse
b) £ Emergencyon/off switch
c) £ Fire alarm system
9 Output message u
£ Bell/gong £ Light/ventilation £ Door locked
£ Door status ………………
£ Depending on the system’s equipment
T1321_4e
3c 3a 3a
HK
inside outside
NK NK
5a, 7a
3d
3c
3d
3b 3b
1
4a
4c
8b
7c
7b 6a
6b
2a 4d 4b
8c
7d 7d
2a
8a
2b

Related product manuals