EasyManua.ls Logo

Toro 74096 - Schematics; Electrical Schematic (Machine)

Toro 74096
68 pages
Print Icon
To Next Page IconTo Next Page
To Next Page IconTo Next Page
To Previous Page IconTo Previous Page
To Previous Page IconTo Previous Page
Loading...
Schematics
RED/WHITE
GREEN/WHITE
BLACK
GREEN/YELLOW
GREEN/YELLOW
GREEN/BROWN
GREEN/BROWN
GREEN/GRAY
RED/GREEN
RED/GREEN
RED/GREEN
RED/GREEN
BLACK
BLACK
RED/GREEN
RED/GREEN
RED/GREEN
RED/GREEN
RED/GREEN
BLUE
BLUE
BLACK
BLACK
BLACK
BLACK
BLACK
BLACK
BLACK
BLACK
BLACK
BLACK
BLACK
BLACK
BLACK
BLACK
BLACK
BLACK
BLACK
GREEN
GREEN
GREEN
YELLOW
YELLOW
VIOLET/RED
VIOLET/RED
YELLOW
YELLOW
YELLOW
YELLOW
VIOLET/WHITE
VIOLET/WHITE
RED/WHITE
RED/WHITE
RED/WHITE
RED/WHITE
RED/WHITE
RED/WHITE
RED/WHITE
RED/WHITE
RED/WHITE
RED/WHITE
RED/WHITE
RED/WHITE
RED/WHITE
RED/WHITE
RED/WHITE
YELLOW
GREEN
GREEN
GREEN
GREEN
GRAY/VIOLET
GRAY/VIOLET
RED/GREEN
BLACK
SW01
LH NEUTRAL Switch
SW02
RH NEUTRAL Switch
SW03
BRAKE Switch
SW04
OPC Switch
S
IGNITION SWITCH
SW06
RUN
START
B
OFF
I
A
NC
CAN HI
CAN LO
SW PWR
PWR
GND
CAP02
CAP
SERVICE PORT
PTO HALL-EFFECT SWITCH
SEN02
V+
GND
OUT
KNOB EXTENDED = HIGH
KNOB DEPRESSED = OPEN
ORANGE
ORANGE
GREEN/WHITE
GREEN/WHITE
SP07
GREEN/GRAY
GREEN/GRAY
RED/WHITE
RED/WHITE
SP01
SP02
SP03
SP04
SP05
SP06
CAP01
DUST CAP
SW05
DOWN
(ON)-OFF-(ON)
UP
ORANGE
ORANGE
GRAY/RED
BLACK
RED/GREEN
RED/WHITE
BLACK
BLACK
RED/GREEN
BLUE/BLACK
BLUE/BLACK
ORANGE/RED
ORANGE/RED
RED/GREEN
SEN01
TRANS TEMP SENSOR
P05
1
P05
2
S1
P09
2
P09
1
L04
S2
P08
2
P08
1
CLUTCH - TRANSMISSION
P17
A
B
P1003
A
B
C
P19
A
B
C
SP1001
PX01
PROX SENSOR
GND
OUT
+12V
P1001
A
B
C
PX02
PROX SENSOR
GND
OUT
+12V
P1002
A
B
C
BLACK
WHITE/BLACK WHITE/BLACK
RED/WHITE
RED/WHITE
RED/WHITE
GREEN/WHITE
GREEN/WHITE
P13
2
P13
1
P12
2
P12
1
P11
2
P11
1
P10
2
P10
1
P15
D
P15
C
A
B
LOGIC DISPLAY UNIT
DIS01
PWR
GND
CAN HI
CAN LO
P04
1
2
3
4
RED-2 MASTER CONTROL UNIT
MOD01
P01
1
FUEL PUMP PWR
2
N/A
3
ALARM
4
N/A
5
B+
6
B+
7
N/A
8
GND
9
GND
10
CLUTCH OUT
11
PWR TO RUN
12
START
P02
1
CAN HI
2
NEUTRAL
3
BRAKE
4
OPC
5
N/A
6
KEY A
7
N/A
8
N/A
9
N/A
10
KEY S
11
N/A
12
CAN LO
P03
1
N/A
2
N/A
3
PTO SWITCH IN
4
N/A
5
N/A
6
N/A
7
DECK POS SW
8
TRANS TEMP
9
N/A
10
N/A
11
N/A
12
N/A
P14
B
P14
A
C
P18
1
2
3
4
5
6
P16
A
GND
B
ACC PWR
C
ACC SIGNAL
P07
1
3
4
6
8
P07
2
5
7
P06
ENGINE HARNESS CONNECTOR
1
FUSED PWR
2
ACC PWR
3
START
4
SW PWR
5
PWR TO RUN
6
GND
7
FUEL PUMP PWR
8
ALARM
9
NC
10
CAN LO
11
CAN HI
12
GND
DECK LIFT VALVE
Lower = PWR to S2
Raise = PWR to S1
OUT
GND
OUT
GND
g241314
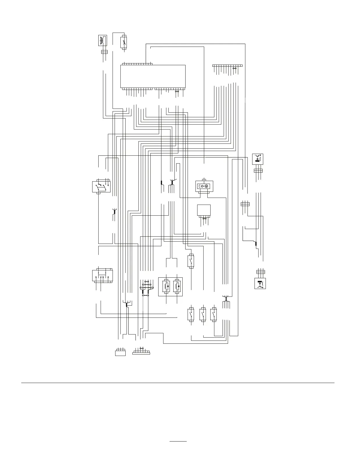
ElectricalSchematic—MachinewithHorizonDisplayMonitor(Rev.A)
65

Table of Contents

Other manuals for Toro 74096

Related product manuals