EasyManua.ls Logo

Toshiba PROSEC T1 - Page 46

Toshiba PROSEC T1
313 pages
To Next Page IconTo Next Page
To Next Page IconTo Next Page
To Previous Page IconTo Previous Page
To Previous Page IconTo Previous Page
Loading...
6F3B0250
44
T1/T1S User’s Manual
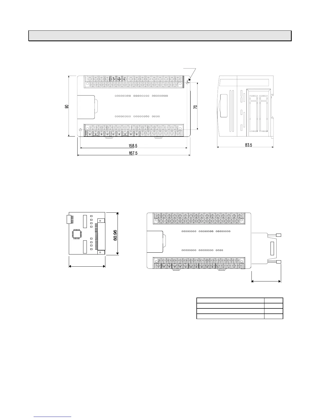
2. Specifications
¨
¨¨
¨
T1-40/T1-40S, Expansion unit
¨
¨¨
¨
Option card
[mm]
43.18
25
A
Additional space for Option card connector
Card type A
DI116, DO116, DD116 55
AD121, AD131, DA121, DA131 16
FR112 11
CTi Automation - Phone: 800.894.0412 - Fax: 208.368.0415 - Web: www.ctiautomation.net - Email: info@ctiautomation.net

Table of Contents

Related product manuals