EasyManua.ls Logo

Trane Technologies Voyager 3 - Page 12

Trane Technologies Voyager 3
92 pages
Print Icon
To Next Page IconTo Next Page
To Next Page IconTo Next Page
To Previous Page IconTo Previous Page
To Previous Page IconTo Previous Page
Loading...
12
RT-SVX34V-EN
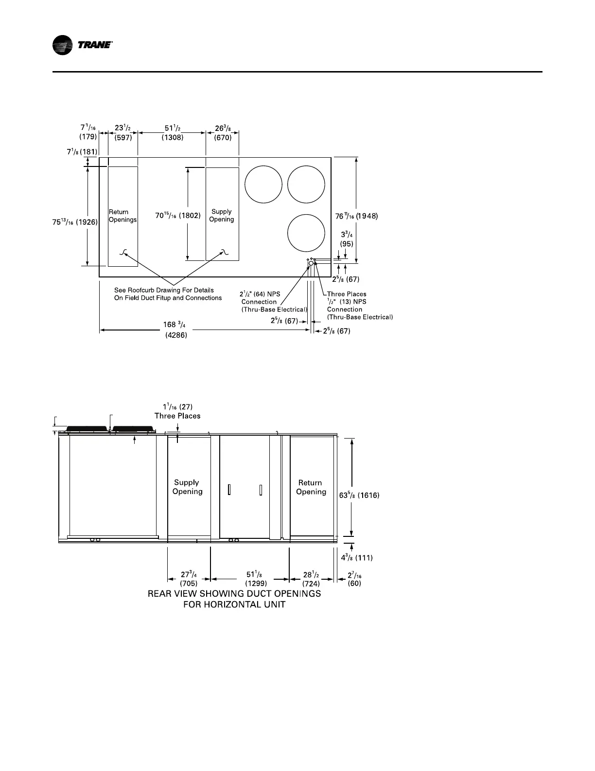
Unit Dimensions
Figure 1. 60 Hz 27.5-35, 50 Hz 23-29 Tons (TCD, TED, YCD low heat)
Figure 2. Rear view showing duct openings for horizontal supply and return, 60 Hz 27.5-35, 50Hz 23-29 Tons (TCH,
TEH, YCH low heat)
1 1/4
(32)
3 1/4
(81)
Notes:
On horizontal units, the VFD is located between the supply and return ductwork, which makes access limited.
For combination of horizontal and downflow openings (digit 3 = F or R) see for appropriate downflow dimensions and
for appropriate horizontal dimensions.
Unit Dimensions and Weights

Related product manuals