EasyManua.ls Logo

Trane Technologies Voyager 3 - Page 16

Trane Technologies Voyager 3
92 pages
Print Icon
To Next Page IconTo Next Page
To Next Page IconTo Next Page
To Previous Page IconTo Previous Page
To Previous Page IconTo Previous Page
Loading...
16
RT-SVX34V-EN
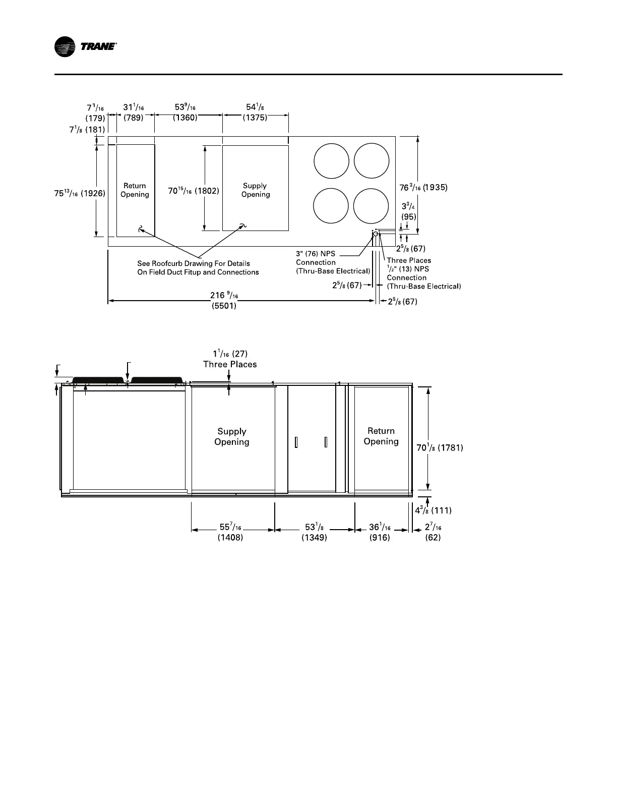
Figure 9. 60 Hz 40-50, 50 Hz 33-42 tons (TCD, TED, YCD low and high heat)
Figure 10. Rear view showing duct openings for horizontal supply and return, 60 Hz 40-50, 50Hz 33-42 Tons (TCH,
TEH, YCH low and high heat)
1 1/4
(32)
3 1/4
(81)
Notes:
On horizontal units, the VFD is located between the supply and return ductwork, which makes access limited.
For combination of horizontal and downflow openings (digit 3 = F or R) see for appropriate downflow dimensions and
for appropriate horizontal dimensions.
Unit Dimensions and Weights

Related product manuals