EasyManua.ls Logo

Trane FADA - Page 24

Trane FADA
84 pages
Print Icon
To Next Page IconTo Next Page
To Next Page IconTo Next Page
To Previous Page IconTo Previous Page
To Previous Page IconTo Previous Page
Loading...
24 FAXA-SVX01B-EN
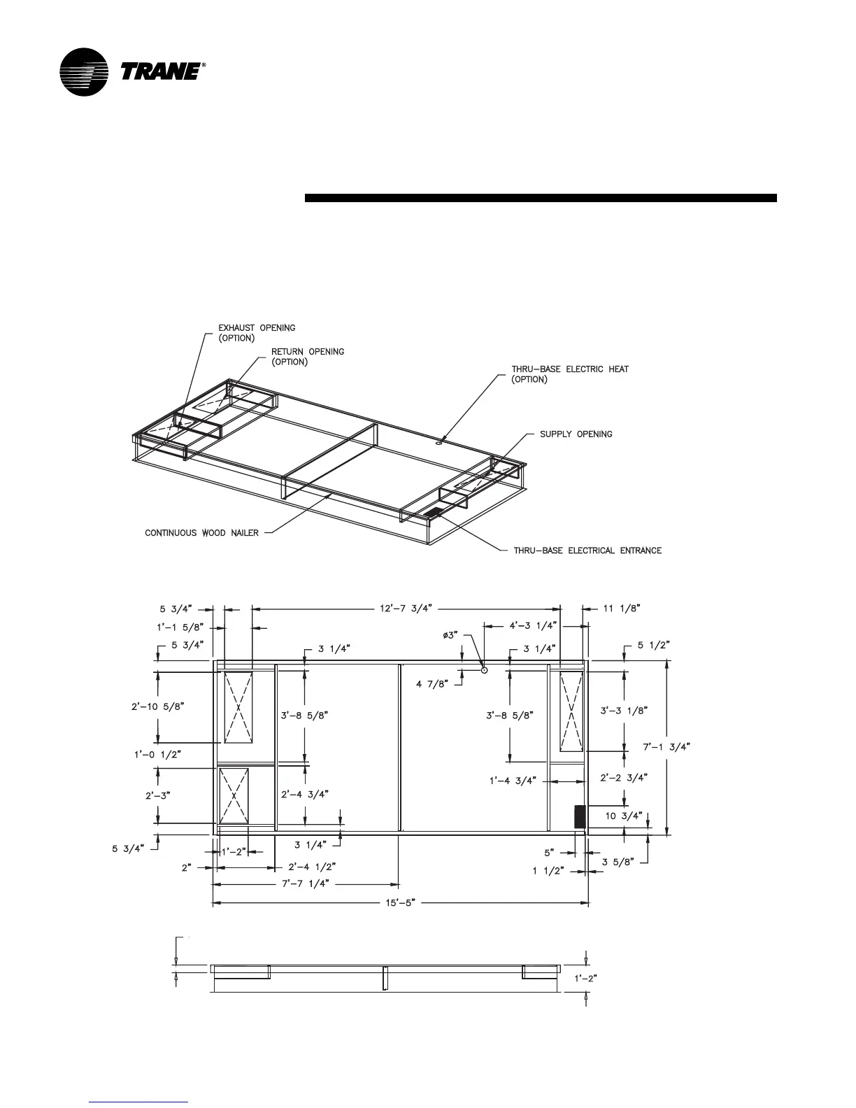
Installation
dimensions
& weights
Standard curb, unit sizes 031 & 040
without TE wheel
6’’ WOOD NAILER

Related product manuals