EasyManua.ls Logo

Trane FADA - Page 25

Trane FADA
84 pages
Print Icon
To Next Page IconTo Next Page
To Next Page IconTo Next Page
To Previous Page IconTo Previous Page
To Previous Page IconTo Previous Page
Loading...
FAXA-SVX01B-EN 25
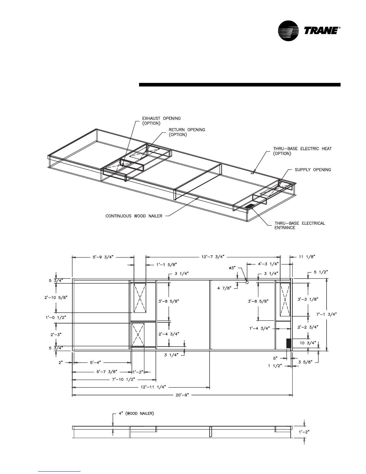
Installation
dimensions
& weights
6" WOOD NAILER
Standard roof curb, unit sizes 031 & 040
with TE wheel

Related product manuals