EasyManua.ls Logo

Trane FADA - Page 26

Trane FADA
84 pages
Print Icon
To Next Page IconTo Next Page
To Next Page IconTo Next Page
To Previous Page IconTo Previous Page
To Previous Page IconTo Previous Page
Loading...
26 FAXA-SVX01B-EN
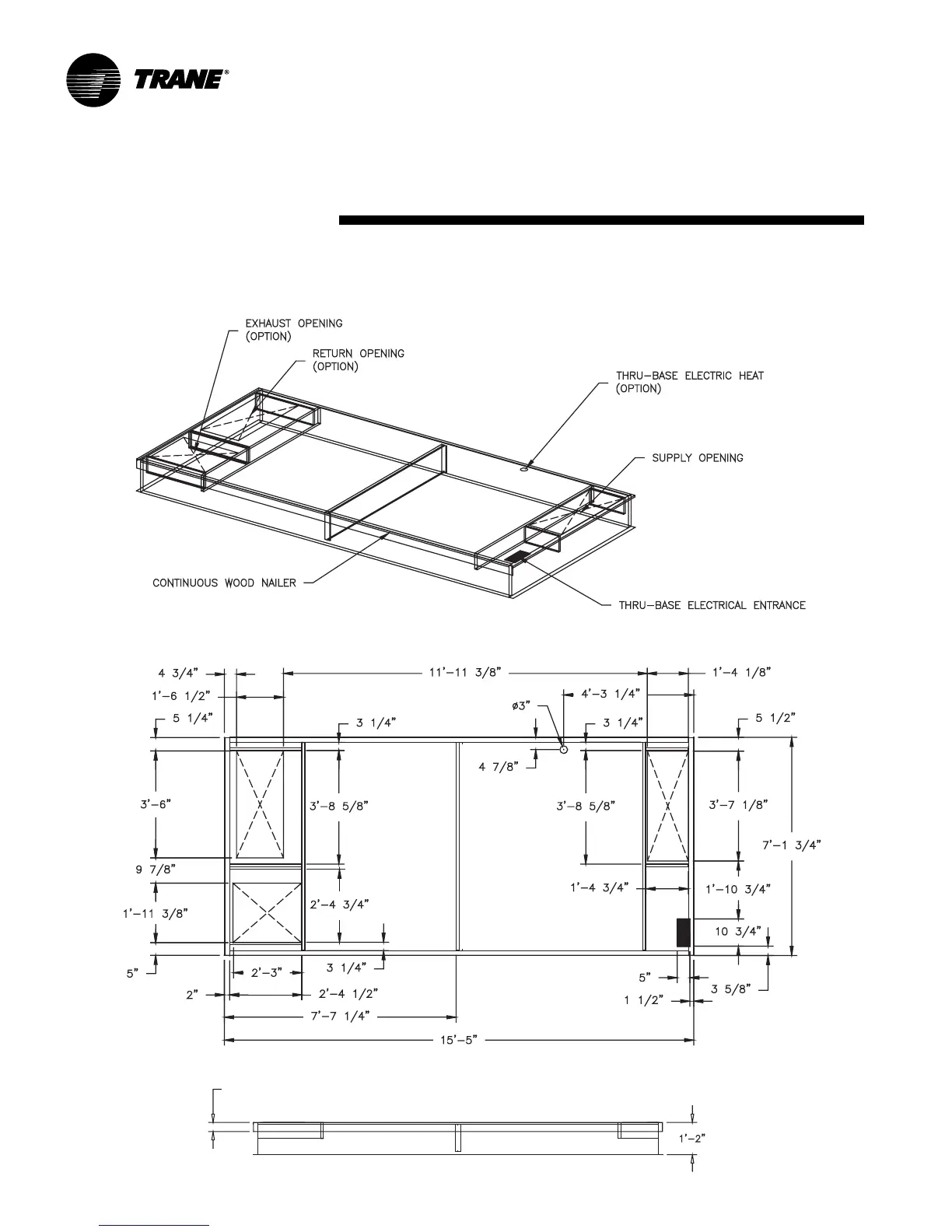
Installation
dimensions
& weights
6’’ WOOD NAILER
Standard curb , unit sizes 051 & 66
without TE wheel

Related product manuals