EasyManua.ls Logo

Trane FADA - Page 27

Trane FADA
84 pages
Print Icon
To Next Page IconTo Next Page
To Next Page IconTo Next Page
To Previous Page IconTo Previous Page
To Previous Page IconTo Previous Page
Loading...
FAXA-SVX01B-EN 27
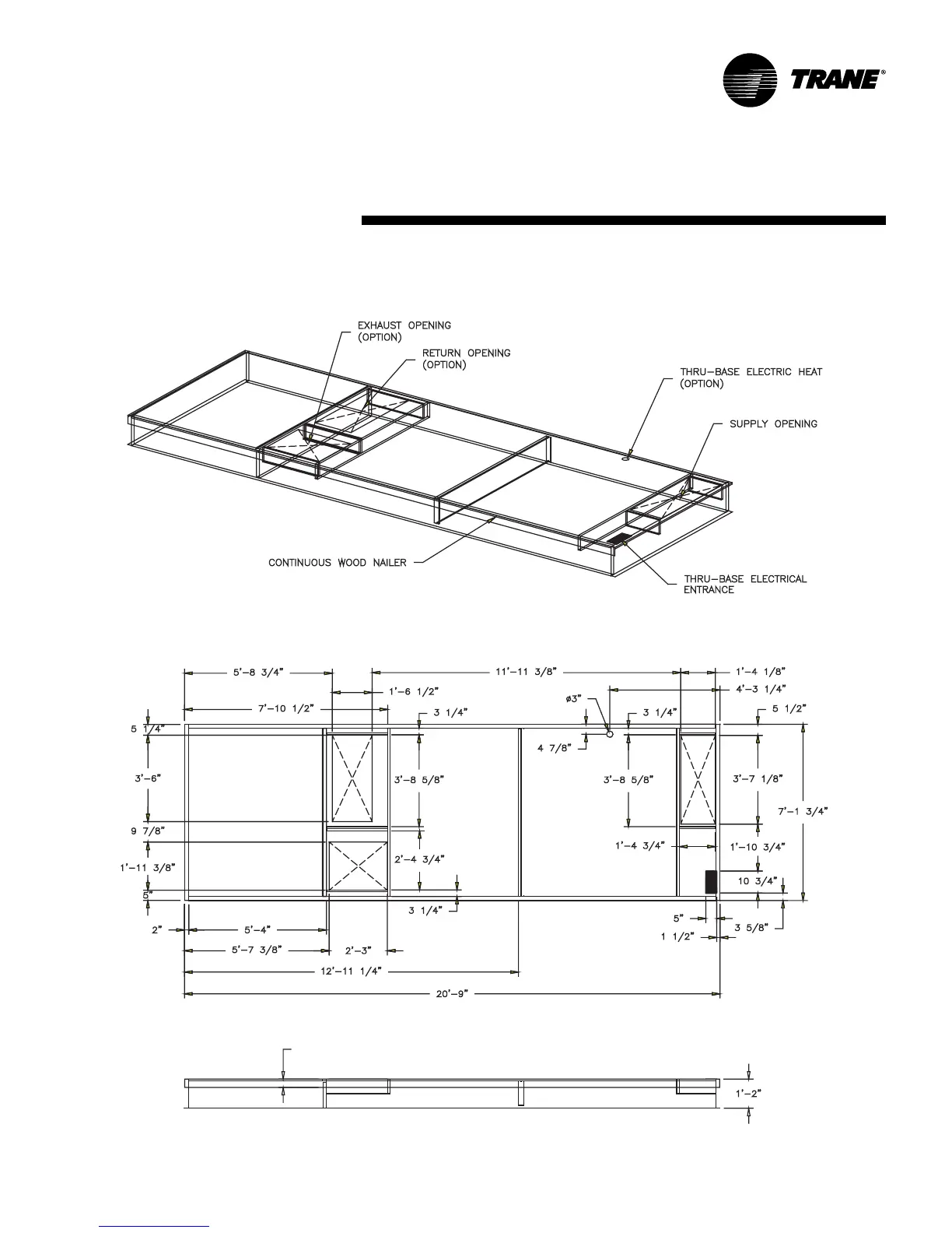
Installation
dimensions
& weights
Standard roof curb, unit sizes 051 & 066
with TE wheel
6" WOOD NAILER

Related product manuals