EasyManua.ls Logo

Trane TR170 - H7, H8, I7, I8 Frame Size

Trane TR170
103 pages
To Next Page IconTo Next Page
To Next Page IconTo Next Page
To Previous Page IconTo Previous Page
To Previous Page IconTo Previous Page
Loading...
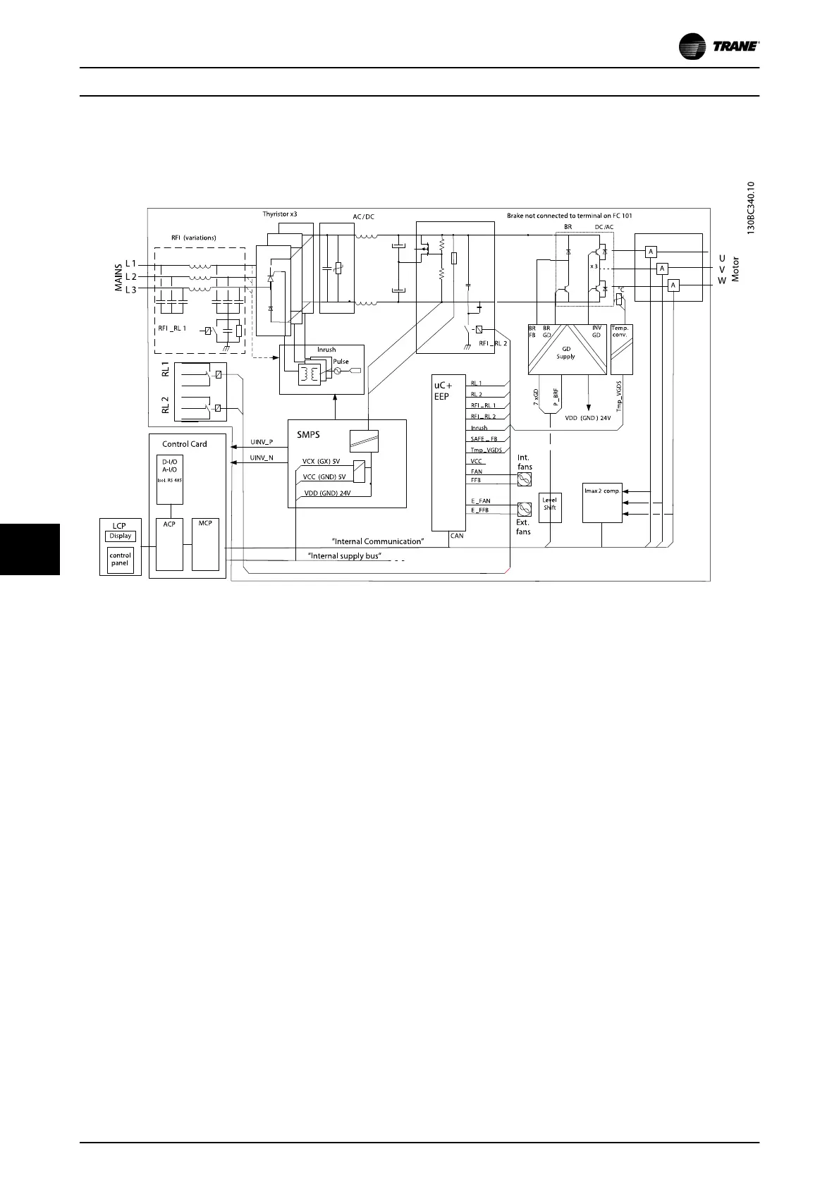
9.1.3 H7, H8, I7, I8 Frame Size
Illustration 9.3 H7, H8, I7, I8 Frame Size
Block Diagrams
96 02/2017 All rights reserved. BAS-SVM04B-EN
9
9

Table of Contents

Other manuals for Trane TR170

Related product manuals