EasyManua.ls Logo

TurboChef 2020 - Hhc 2620 Dimensions; Hhc 2620 Electrical Specifications

TurboChef 2020
36 pages
Print Icon
To Next Page IconTo Next Page
To Next Page IconTo Next Page
To Previous Page IconTo Previous Page
To Previous Page IconTo Previous Page
Loading...
2
SPECIFICATION AND INSTALLATION
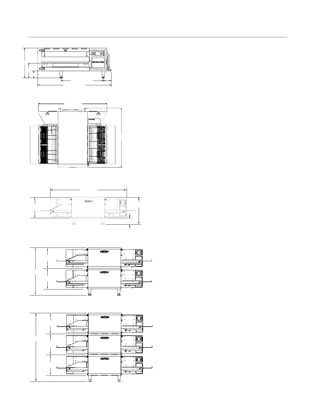
6.0”
(152 mm)
6.0”
(152 mm)
48.3” (1227 mm)
41.7”
(1059 mm)
24.0” (610 mm)
4.0”
(102 mm)
8.5”
(216 mm)
17.0”
(432 mm)
41.7” (1059 mm)
4.0”
(112 mm)
HhC 2620 Dimensions
Exterior
Height 13.0” (330 mm)
--with legs 17.0” (432 mm)
Width 48.3” (1227 mm)
Depth 41.7” (1059 mm)
Conveyor
Length 48.3” (1227 mm)
Width (Single) 20.0” (508 mm)
Width (50/50) 9.5” / 9.5” (241 mm / 241 mm)
Width (70/30) 15” / 4” (381 mm / 102 mm)
Electrical Specifications
North America
3 Phase
208/240 VAC
50/60 Hz
40 amp current draw
Max Input: 14.4 kW
4-wire supply
NEMA 15-50P plug (4-pin IEC60309 available by
special order)
50-amp max circuit breaker protection
Europe/Asia (220-240 VAC)
3 Phase
220-240 VAC
50/60 Hz
40 amp current draw
Max Input: 14.4 kW
4-wire supply
IEC60309 4-pin plug
64-amp max circuit breaker protection
Europe/Asia (380-415 VAC)
3 Phase
380-415 VAC
50/60 Hz
20 amp current draw
Max Input: 14.4 kW
5-wire supply
IEC60309 5-pin plug
32-amp max circuit breaker protection
35.7” (907 mm)
48.3(1227 mm)
8.5”
(216 mm)
13.0”
(330 mm)
17.0”
(432 mm)
4.0” (102 mm)
60.1(1527 mm) with extensions
43.0”
(1092 mm)
30.0”
(762 mm)
13.0”
(330 mm)
13.0”
(330 mm)
13.0”
(330 mm)
13.0”
(330 mm)
13.0”
(330 mm)
8.5”
(216 mm)
13.0”
(330 mm)
21.5”
(546 mm)
8.5”
(216 mm)
13.0”
(330 mm)
34.5”
(876 mm)
13.0”
(330 mm)
35.7” (907 mm)
48.3(1227 mm)
8.5”
(216 mm)
13.0”
(330 mm)
17.0”
(432 mm)
4.0” (102 mm)
60.1(1527 mm) with extensions
43.0”
(1092 mm)
30.0”
(762 mm)
13.0”
(330 mm)
13.0”
(330 mm)
13.0”
(330 mm)
13.0”
(330 mm)
13.0”
(330 mm)
8.5”
(216 mm)
13.0”
(330 mm)
21.5”
(546 mm)
8.5”
(216 mm)
13.0”
(330 mm)
34.5”
(876 mm)
13.0”
(330 mm)
35.7” (907 mm)
48.3(1227 mm)
8.5”
(216 mm)
13.0”
(330 mm)
17.0”
(432 mm)
4.0” (102 mm)
60.1(1527 mm) with extensions
43.0”
(1092 mm)
30.0”
(762 mm)
13.0”
(330 mm)
13.0”
(330 mm)
13.0”
(330 mm)
13.0”
(330 mm)
13.0”
(330 mm)
8.5”
(216 mm)
13.0”
(330 mm)
21.5”
(546 mm)
8.5”
(216 mm)
13.0”
(330 mm)
34.5”
(876 mm)
13.0”
(330 mm)
Figure 6: HhC 2620 Oven Dimensions - Side
Figure 7: HhC 2620 Oven Dimensions - Top
Figure 8: HhC 2620 Oven Dimensions - Front (Single)
Figure 9: HhC 2620 Oven Dimensions - Front (Double)
Figure 10: HhC 2620 Oven Dimensions - Front (Triple)
6.0”
(152 mm)
6.0”
(152 mm)
48.3” (1227 mm)
41.7”
(1059 mm)
24.0” (610 mm)
4.0”
(102 mm)
8.5”
(216 mm)
17.0”
(432 mm)
41.7” (1059 mm)
4.0”
(112 mm)

Other manuals for TurboChef 2020

Related product manuals