EasyManua.ls Logo

Valor 940 - Installation Options, Flues, and Propane Fires

Valor 940
60 pages
Print Icon
To Next Page IconTo Next Page
To Next Page IconTo Next Page
To Previous Page IconTo Previous Page
To Previous Page IconTo Previous Page
Loading...
© GDC Group Ltd. 2011
Page 14
3.10 Installation options.
In the United Kingdom, as supplied, the appliance can be installed in the following
situations: -
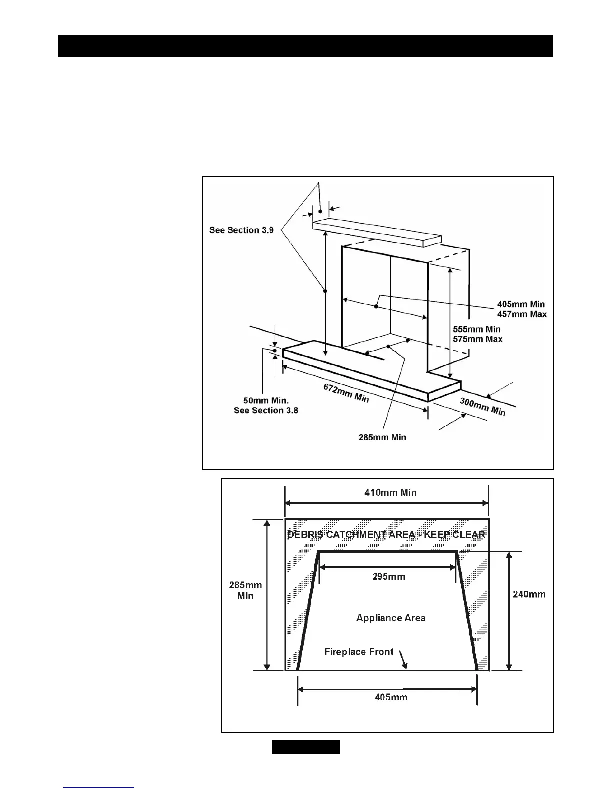
3.10.1 Conventional fireplace and hearth.
To a fireplace complete with surround and hearth as shown in figure 5 and complying
with BS1251 after removal of the fireback and sufficient material behind the fireback
for a debris catchment
space. The required
fireplace and debris
catchment area are
shown in figure 6.
INSTALLER GUIDE
Figure 5. Hearth and fireplace opening dimensions
Figure 6. Fireplace area.

Table of Contents

Related product manuals