EasyManua.ls Logo

Vatech PCH-30CS - Page 23

Vatech PCH-30CS
152 pages
Print Icon
To Next Page IconTo Next Page
To Next Page IconTo Next Page
To Previous Page IconTo Previous Page
To Previous Page IconTo Previous Page
Loading...
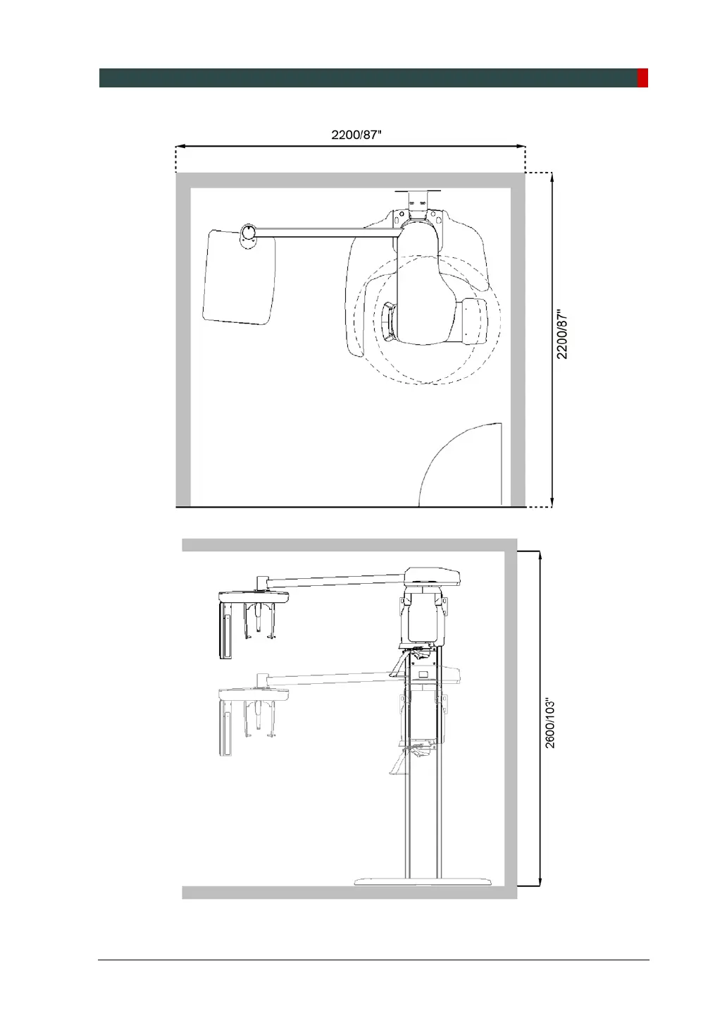
2. Choosing an Installation Site
PaX-i Plus / Insight Installation Manual 13
<With CEPH Unit (optional): 2,200 (L) x 2,200 mm (W) or wider >
<Ceiling Height: 2,600 mm (H) or higher >

Table of Contents

Other manuals for Vatech PCH-30CS

Related product manuals