EasyManua.ls Logo

Viessmann B2HA 80 - Page 38

Viessmann B2HA 80
64 pages
Print Icon
To Next Page IconTo Next Page
To Next Page IconTo Next Page
To Previous Page IconTo Previous Page
To Previous Page IconTo Previous Page
Loading...
Vitodens 200-W B2HA 80 to 100, 285 to 352 Installation
5685 827 - 14
38
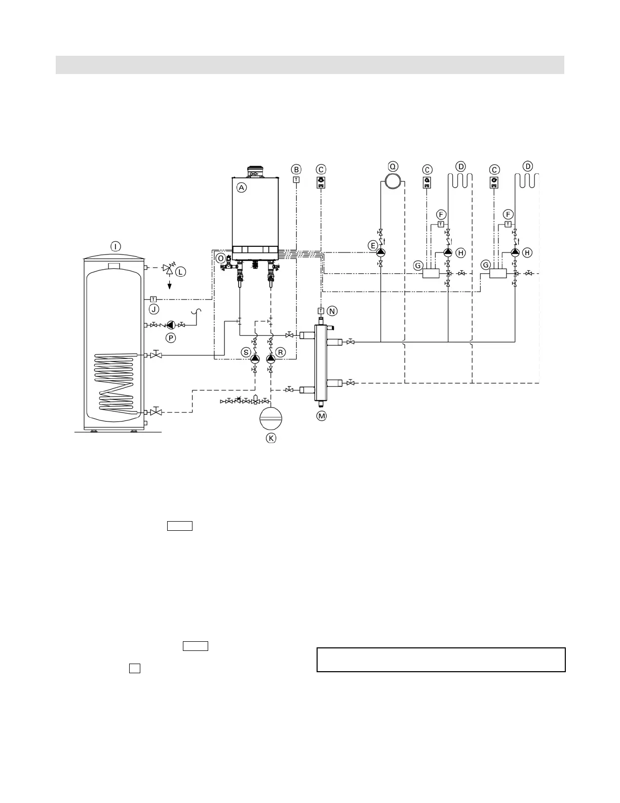
Boiler Connections
System Layout 6
Vitodens 200-W, B2HA with...
- DHW storage tank
- one heating circuit without a mixing valve
- two heating circuits with a mixing valve
- low-loss header
Installation of different heating circuits...
two heating circuits with 3-way mixing valve
(low-temp. circuit)
DHW production
... with the following flow conditions:
The total flow rate of the two heating circuits is greater
than the maximum possible water flow rate of the
Vitodens 200-W B2HA boiler (see page 30 for maximum
water flow rate of boiler).
The use of a low-loss header is strongly recommended.
The low-loss header is available as accessory part.
The 3-way mixing valve, built-in to achieve the low-
temperature level of the under floor heating circuit, is
controlled by an accessory kit for a heating circuit with
a mixing valve.
DHW circulating pump S must pump into the Vitodens
200-W B2HA boiler (as illustrated).
IMPORTANT
Legend
A Vitodens 200-W B2HA boiler with
Vitotronic 200, HO1B outdoor reset control
B Outdoor temperature sensor !
C Vitotrol remote (optional)
D Under floor heating circuit
E Heating circuit pump 28/20 *
F Mixing valve temperature sensor ?
G Accessory kit for heating circuit with mixing valve
H Heating circuit pumps
I DHW storage tank
J DHW tank temperature sensor %
K Expansion tank
L Temperature and pressure relief valve
M Low-loss header
N Viessmann temperature sensor for low-loss header ?
O Pressure relief valve
P DHW recirculation pump 28/20 *
Q Radiator heating circuit
R Boiler pump 20
S DHW circulating pump sA
* Function based on coding of address 53

Table of Contents

Related product manuals