EasyManua.ls Logo

Viessmann B2HA 80 - Page 37

Viessmann B2HA 80
64 pages
Print Icon
To Next Page IconTo Next Page
To Next Page IconTo Next Page
To Previous Page IconTo Previous Page
To Previous Page IconTo Previous Page
Loading...
Vitodens 200-W B2HA 80 to 100, 285 to 352 Installation
37
5685 827 - 14
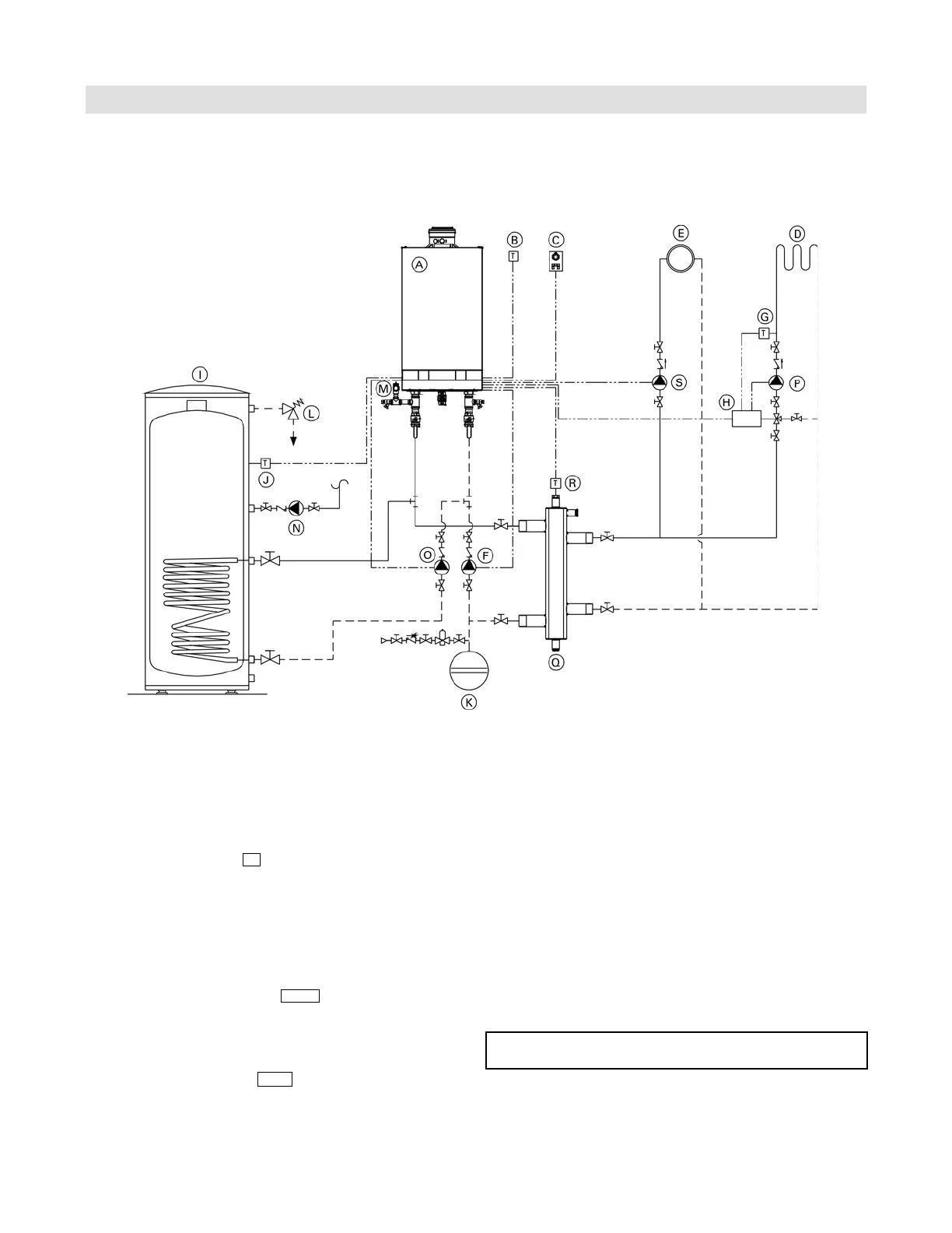
Boiler Connections
System Layout 5
Vitodens 200-W, B2HA with...
- DHW storage tank
- one heating circuit with mixing valve
- one heating circuit without mixing valve and low-loss header
Installation of different heating circuits...
radiator heating circuit (high-temp. circuit)
under floor heating circuit with 3-way mixing valve
(low-temp. circuit)
DHW production
... with the following flow conditions:
The total flow rate of the two heating circuits is greater
than the maximum possible water flow rate of the
Vitodens 200-W B2HA boiler (see page 30 for maximum
water flow rate of boiler).
The use of a low-loss header is strongly recommended.
The low-loss header is available as accessory part.
The 3-way mixing valve, built-in to achieve the low-
temperature level of the under floor heating circuit, is
controlled by an accessory kit for a heating circuit with
mixing valve.
DHW circulating pump O must pump into the Vitodens
200-W B2HA boiler (as illustrated).
IMPORTANT
Legend
A Vitodens 200-W B2HA boiler with
Vitotronic 200, HO1B outdoor reset control
B Outdoor temperature sensor !
C Vitotrol remote (optional)
D Under floor heating circuit
E Radiator heating circuit
F Boiler circuit pump 20
G Mixing valve temperature sensor ?
H Kit for heating circuit with mixing valve
I Domestic hot water storage tank
J DHW tank temperature sensor %
K Expansion tank
L Temperature and pressure relief valve
M Pressure relief valve
N DHW recirculation pump 28/20 *
O DHW circulating pump sA
P Heating circuit pump
Q Low-loss header
R Viessmann temperature sensor for low-loss header ?
S Heating circuit pump 28/20 *
* Function based on coding of address 53

Table of Contents

Related product manuals