EasyManua.ls Logo

Viessmann Vitocal 252-A Series - Page 31

Viessmann Vitocal 252-A Series
212 pages
Print Icon
To Next Page IconTo Next Page
To Next Page IconTo Next Page
To Previous Page IconTo Previous Page
To Previous Page IconTo Previous Page
Loading...
31
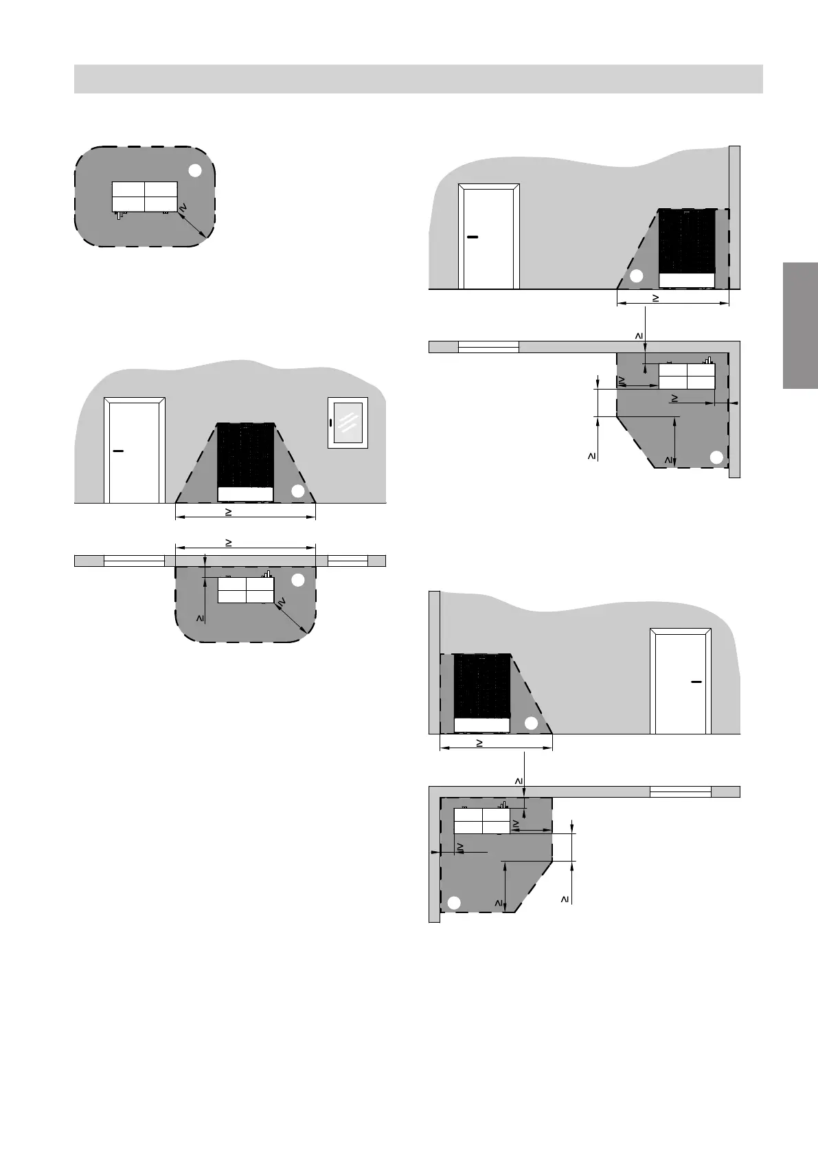
Freestanding positioning of the outdoor unit
A
1000
Fig. 10
A
Safety zone
Siting the outdoor unit in front of an external wall
A
A
250
3144
3144
1000
Fig. 11
A
Safety zone
Corner positioning of the outdoor unit, right
A
A
500
1000
1800
2894
750
250
Fig. 12
A
Safety zone
Corner positioning of the outdoor unit, left
250
A
A
2644
1000
500
500
1800
Fig. 13
A
Safety zone
Siting the outdoor unit
Installation location (cont.)
6222080
Installation

Table of Contents

Related product manuals