EasyManua.ls Logo

Viessmann Vitocal 252-A Series - Minimum Clearances; Condensate Drain

Viessmann Vitocal 252-A Series
212 pages
Print Icon
To Next Page IconTo Next Page
To Next Page IconTo Next Page
To Previous Page IconTo Previous Page
To Previous Page IconTo Previous Page
Loading...
32
A
a
A
B
a
b
750
200
1000
1000
B
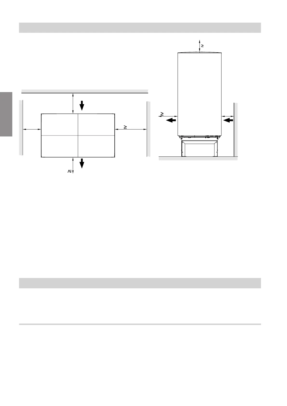
Fig. 14
A
Air intake
B
Air discharge
a Clearance between wall and outdoor unit depend-
ent on line routing:
Line entry above ground level:
250 mm
Line entry below ground level when laying the
Quattro connection line in a straight trench:
940 mm
Line entry below ground level when laying the
Quattro connection line in a trench with a bend:
250 mm
b Dependent on transport used:
Transport aid (standard delivery): 500 mm
Transport and siting aid (accessories):
2500 mm
Condensate drain
Free condensate drain without drain pipe
Allow the condensate to drain away freely without a
drain pipe into a gravel bed beneath the outdoor unit.
Draining condensate via drain pipe
Note
To ensure correct function of the condensate drain
even at low temperatures, provide a ribbon heater in
the drain pipe (accessories).
Siting the outdoor unit
Minimum clearances
6222080
Installation

Table of Contents

Related product manuals