EasyManua.ls Logo

Viessmann Vitocal 252-A Series - Page 75

Viessmann Vitocal 252-A Series
212 pages
Print Icon
To Next Page IconTo Next Page
To Next Page IconTo Next Page
To Previous Page IconTo Previous Page
To Previous Page IconTo Previous Page
Loading...
75
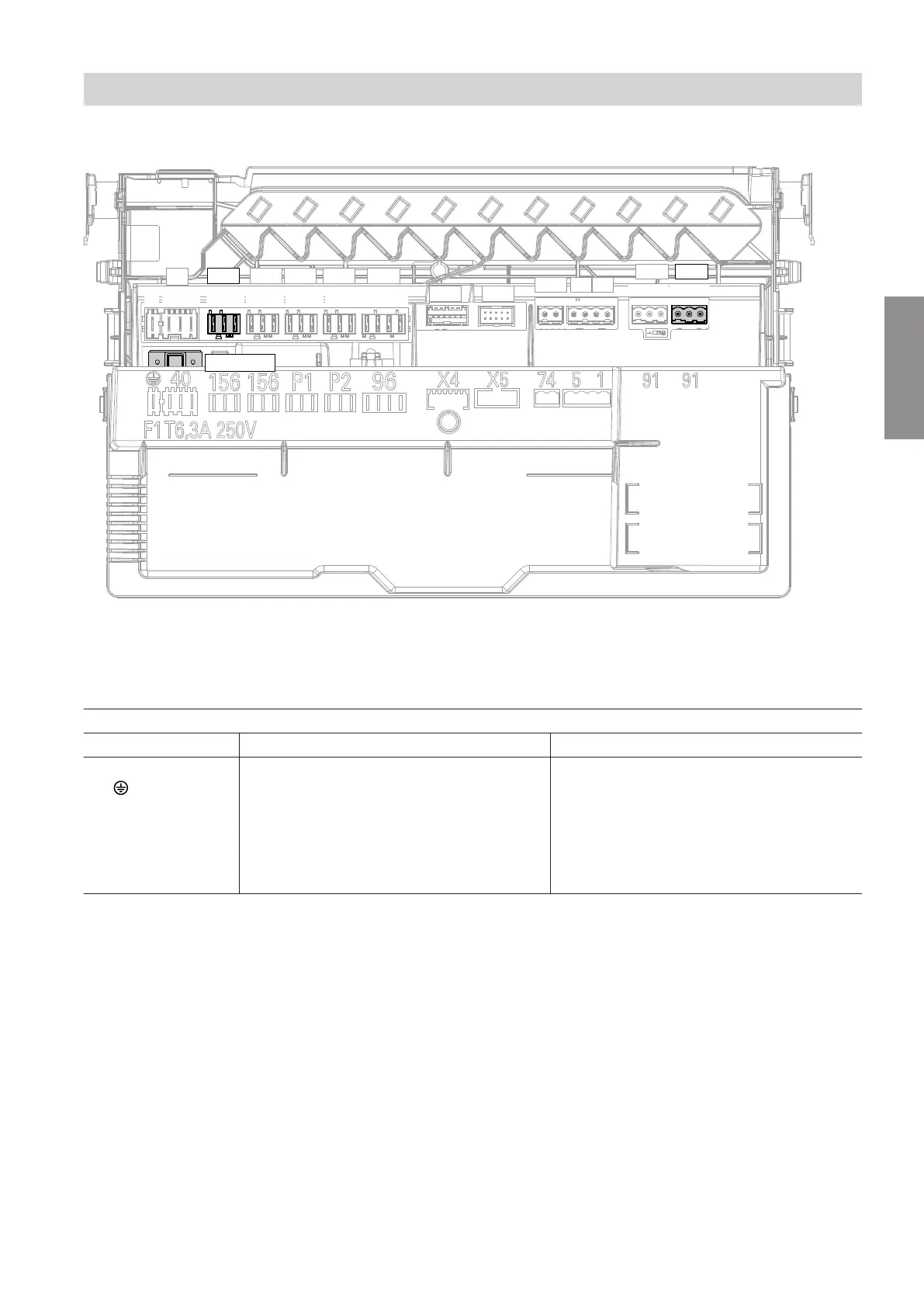
HPMU electronics module: Accessory 230 V~ and BUS connection
? ?
L
N
1
F1 T6.3 A
5 1
L H L H
? ? ?
L
N
?
L
N
X5X4
74
96P2P115615640
9191
L
N
L
N N
?
L
Fig. 55
F1 Fuse 6.3 A H (slow)
Make all connections with flexible cables.
230 V~ connections
Terminals Component Explanation
156.N
156.
156.L
Switched mains output for mains connec-
tion, accessories, e.g. mixer extension kit
Output: 230 W
Voltage: 230 V~
Max. switching current: 1 A
Recommended flexible connecting cable:
3 x 1.5 mm
2
Max. cable length: 50 m
Electrical connections
Electrical connection of the indoor unit (cont.)
6222080
Installation

Table of Contents

Related product manuals