EasyManua.ls Logo

Viessmann Vitotwin 300-W - Page 26

Viessmann Vitotwin 300-W
192 pages
Print Icon
To Next Page IconTo Next Page
To Next Page IconTo Next Page
To Previous Page IconTo Previous Page
To Previous Page IconTo Previous Page
Loading...
26
System version 4, ID: 4605499_1201_01
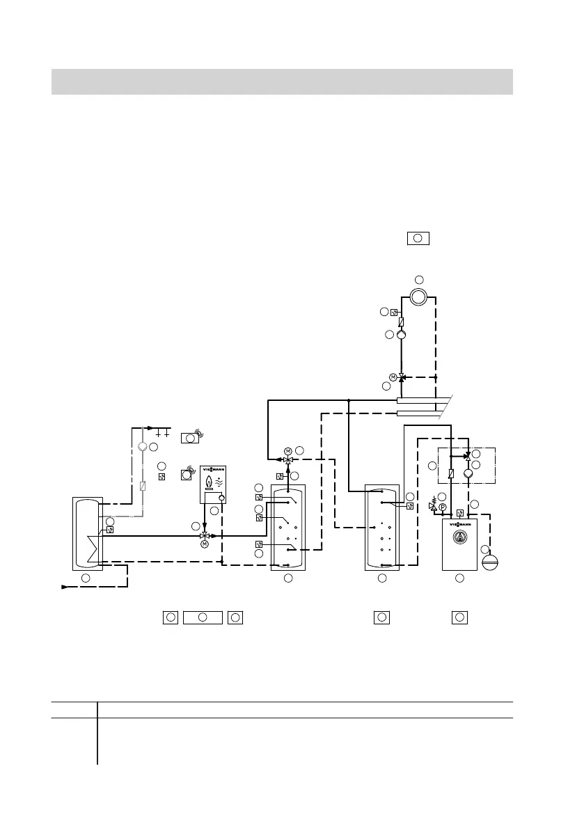
System with solid fuel boiler, heating water buffer cylinders and DHW cylinder
Hydraulic installation scheme
--2B/ATS--
kW
21
8
20
--2B/B3--
--2B/B41--
--2B/B4--
5
6
1
4
--2B/WIRELESS--
3 A
--2/QX3--
9
30
3 B
7
--2B/B42--
--230V--
--52--
--20--
--2--
41
40
42
44
--41/2--
--41/52--
--41/20--
43
--BSB--
2 B
--B41--
--B4--
--B3--
--ATS--
-Wireless-
--B42--
--BSB--
--X1--
2
--230V--
--X300--
--X301--
--X207--
--QX3--
16
15
14
17
13
18
1030
--R1--
--230V--
--S2--
--S1--
31
--31/S1--
--31/S2--
--31/R1--
--11/X3./5.6--
34
32
33
--230V--
--X3./5.6--
--X4./3.4--
--X4./1.2--
11
2 A
--230V--
--X5--
--X10--
--EX2--
Equipment required
Pos. Designation
1
Vitotwin 300 W
with
2
Weather-compensated control unit
Preparing for installation
Preparing for installation
(cont.)
5618 294 GB

Table of Contents

Other manuals for Viessmann Vitotwin 300-W

Related product manuals