EasyManua.ls Logo

Viessmann Vitotwin 300-W - Page 33

Viessmann Vitotwin 300-W
192 pages
Print Icon
To Next Page IconTo Next Page
To Next Page IconTo Next Page
To Previous Page IconTo Previous Page
To Previous Page IconTo Previous Page
Loading...
33
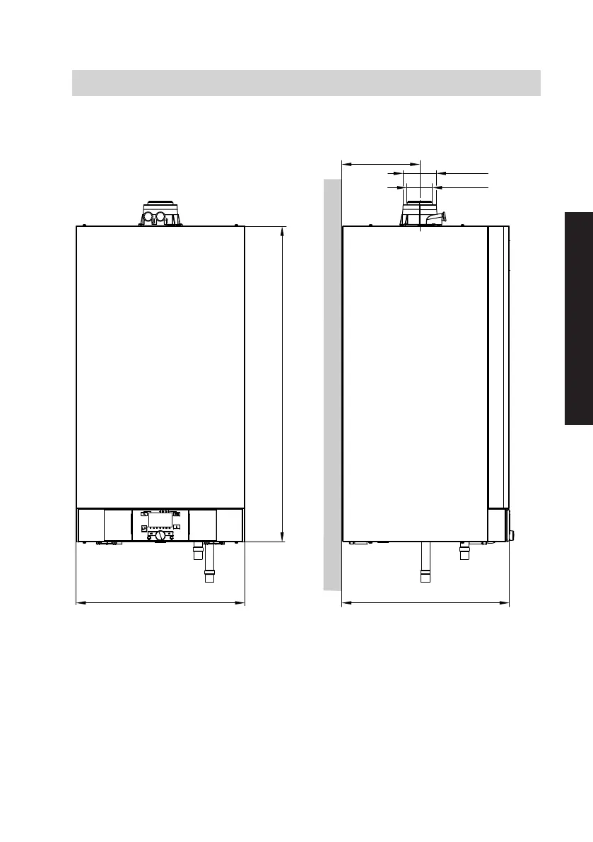
Dimensions
900
Ø 60
Ø 100
480
230
480
Preparing for installation
Preparing for installation
(cont.)
5618 294 GB
Installation

Table of Contents

Other manuals for Viessmann Vitotwin 300-W

Related product manuals