EasyManua.ls Logo

Viking 30'' W - Page 31

Viking 30'' W
50 pages
Print Icon
To Next Page IconTo Next Page
To Next Page IconTo Next Page
To Previous Page IconTo Previous Page
To Previous Page IconTo Previous Page
Loading...
30
L2 (BLK) N (WH) L1 (RED)
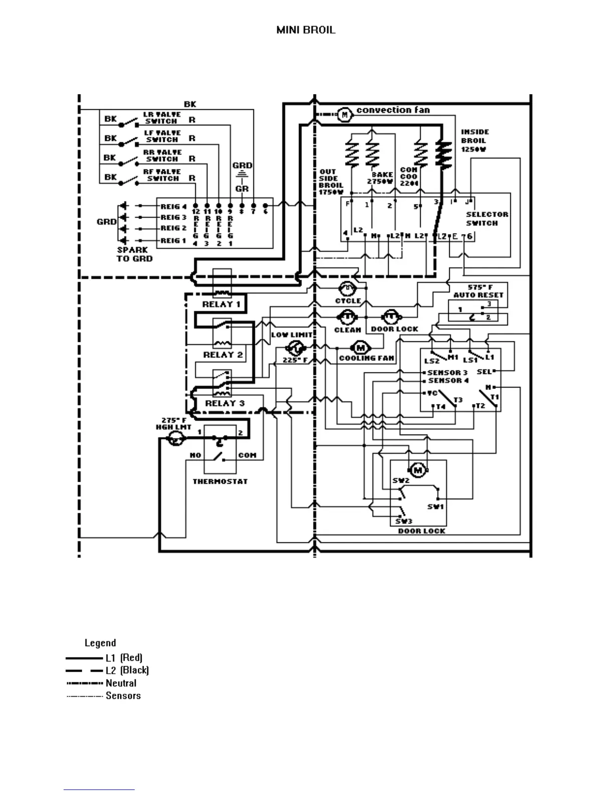
Selector Mini Broil position closes Switches 3-L2. The Thermostat closes Switch Cy1-Cy2, powering Relay #1 and
the Oven Cycle Light. When Relay #1 closes, it powers the inside Broil Element at 208v/240v.