EasyManua.ls Logo

Viking 30'' W - Clean Initiate Until Door Lock Wiring; Selector Clean Position Circuit Logic

Viking 30'' W
50 pages
Print Icon
To Next Page IconTo Next Page
To Next Page IconTo Next Page
To Previous Page IconTo Previous Page
To Previous Page IconTo Previous Page
Loading...
33
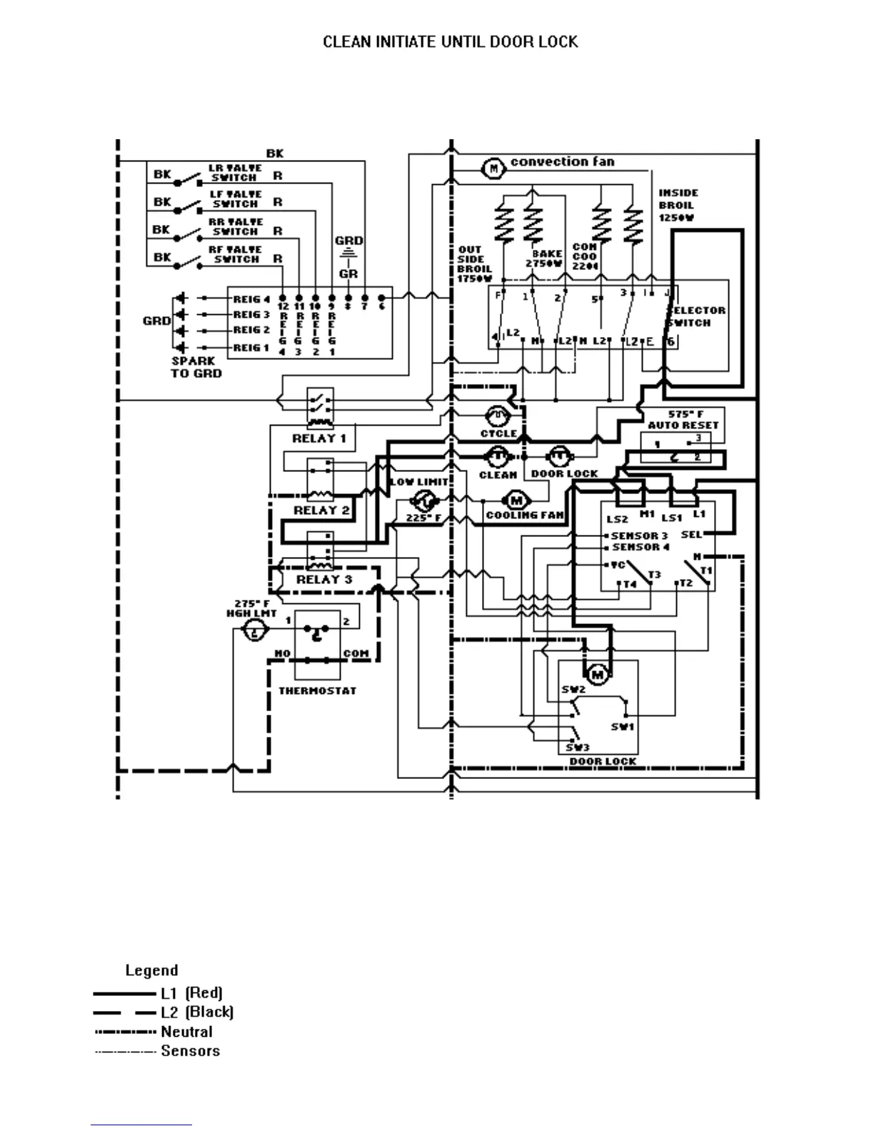
L2 (BLK) N (WH) L1 (RED)
Selector Clean position closes Heating Element circuits 4-F, 1-N, 2-L2, 3-L2 and Door Lock Module / Timer circuit
J-6 switches Relay #2. Thermostat clean position closes the Cycle Switch and Thermostat Clean Switch, which
switches Relay#3. Switching Relay #3 allows circuit J-6 to turn on the Clean Indicator Light and enable the Door
Lock Module / Timer which closes Relays LS1-L1 and LS2-M1. This powers the Door Lock Motor until 10 seconds
after Sensor #3 is signaled by VC that the Door Lock Switch SW2 has been closed mechanically (along with SW3)
by the Door Lock Bolt.

Other manuals for Viking 30'' W

Related product manuals