EasyManua.ls Logo

WAGNER T090 - T090.00 Cr

WAGNER T090
40 pages
Print Icon
To Next Page IconTo Next Page
To Next Page IconTo Next Page
To Previous Page IconTo Previous Page
To Previous Page IconTo Previous Page
Loading...
30
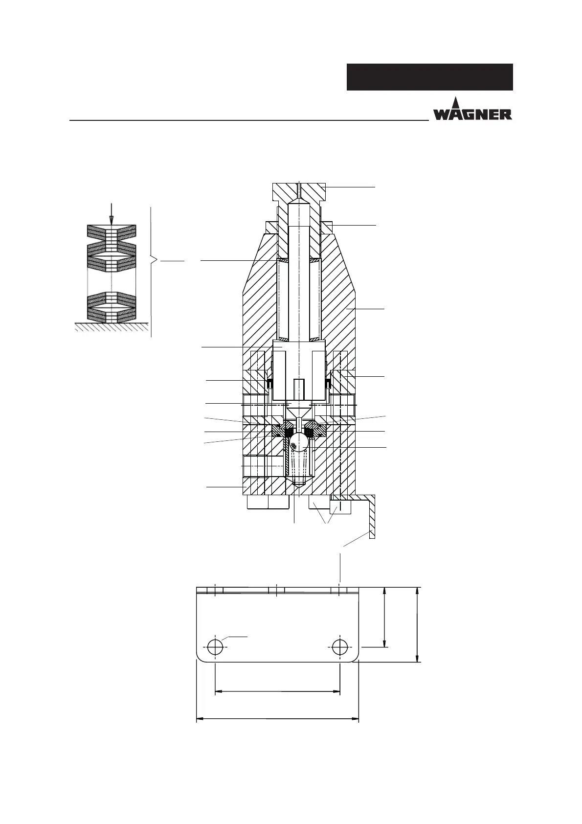
T090, T092.
d 7 mm
50 mm
65 mm
24 mm
30 mm
C_00196
4
1
13
7
11
5
3
10
2
15
12
17 (35 Nm)
8
9
13
6
14
16
3 x 9=27
OPERATING MANUAL
EDITION 01 /2014 PART NO. ZZB022ENG
7.2.2 T090.00CR

Related product manuals