EasyManua.ls Logo

WarmFlow Utility U70HE - Page 24

Default Icon
80 pages
Print Icon
To Next Page IconTo Next Page
To Next Page IconTo Next Page
To Previous Page IconTo Previous Page
To Previous Page IconTo Previous Page
Loading...
Page 22
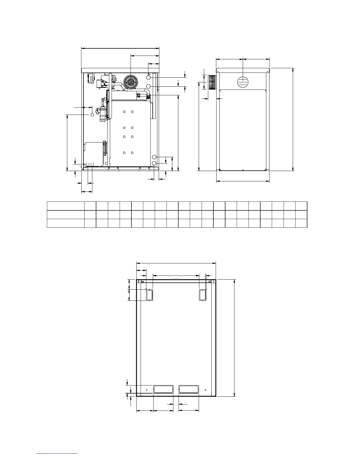
2.2.6 K-Series Kabin Pak (150HE Models)
K150HE DIMS
A B C D E F G H J K L M N P R S T U V
595 997 876 1155 93 161 75 70 120 55 85 155 850 100 100 320 122 630 120
2.2.7 K-Series Kabin Pak Base Tray (150HE Models)
FRONT



  

 




K150HE BASETRAY DIMS
MODEL
A
B
C
D
E
F
G
H
J
K
L
M
N
P
R
S
T
U
V
K150HE
595
997
876
1155
93
161
75
70
120
55
85
155
850
100
100
320
122
630
120
KP150HE
595
997
876
1155
93
161
75
70
120
55
85
155
850
100
100
320
122
630
120

Table of Contents

Related product manuals