EasyManua.ls Logo

Wayne Ovation - Hazardous Zone Area Classifications for Dispensers

Wayne Ovation
88 pages
Print Icon
To Next Page IconTo Next Page
To Next Page IconTo Next Page
To Previous Page IconTo Previous Page
To Previous Page IconTo Previous Page
Loading...
42
Part No. 920559 Rev H November 2008
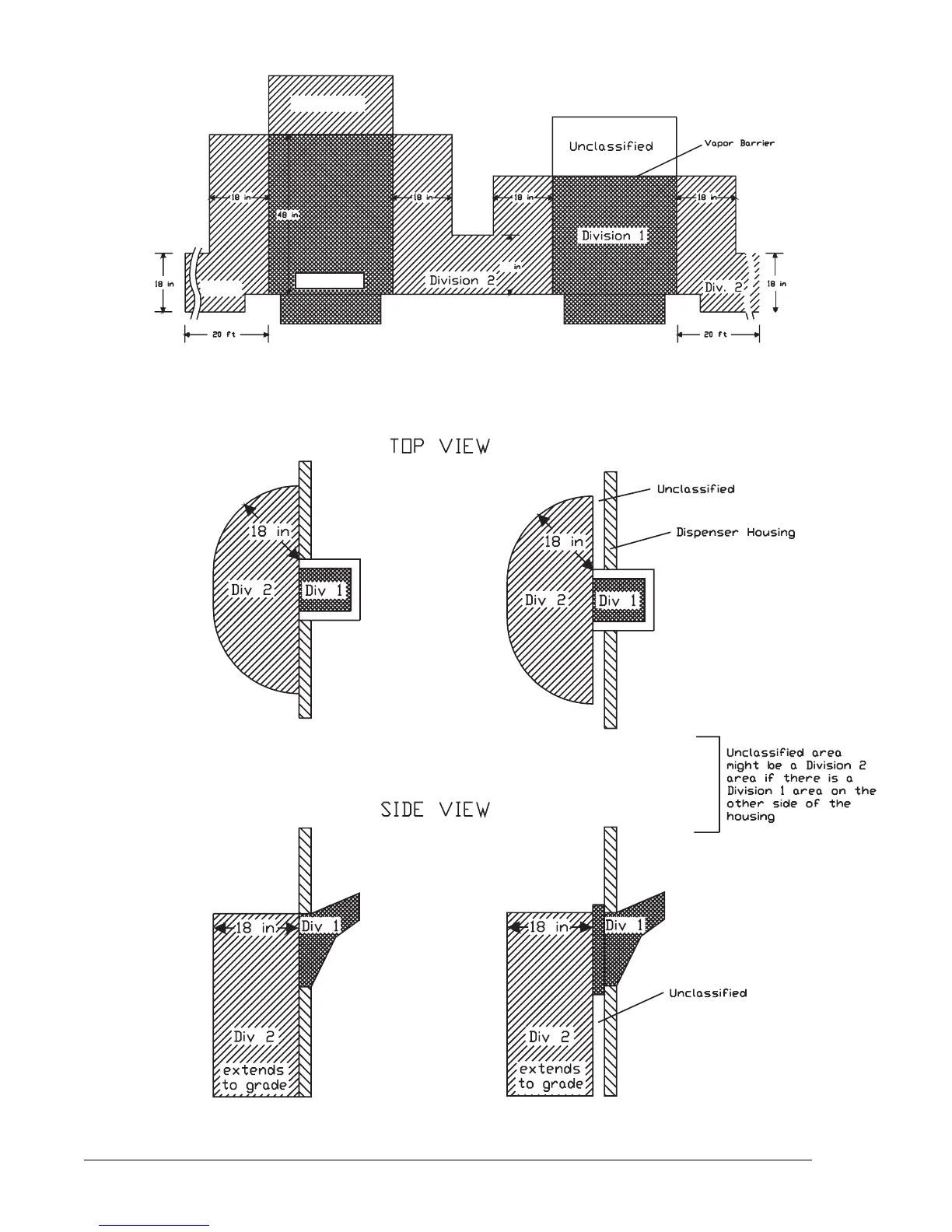
Figure 4-2 Hazardous Zone Area Classifications for Dispensers.
+D]DUGRXV ORFDWLRQ FODVVL¿FDWLRQV DVVRFLDWHG ZLWK D KRVH QR]]OH ERRW
'LVSHQVHUZLWKRXWYDSRU
EDUULHUFRQVWUXFWLRQ
'LVSHQVHUZLWKYDSRU
EDUULHUFRQVWUXFWLRQ
$IVISION
$IVISION
$IV


Table of Contents

Related product manuals