EasyManua.ls Logo

Webasto thermo top evo

Webasto thermo top evo
48 pages
To Next Page IconTo Next Page
To Next Page IconTo Next Page
To Previous Page IconTo Previous Page
To Previous Page IconTo Previous Page
Loading...
33
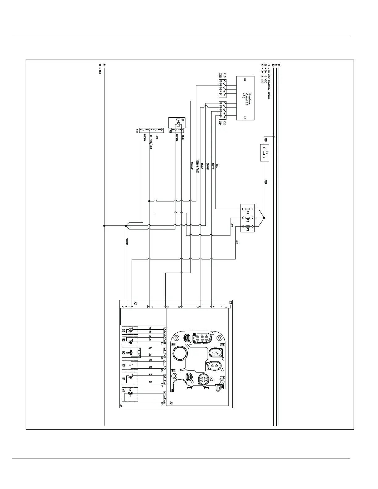
12 | Wiring Diagrams
12.3
Thermo Top Evo with SmarTemp 3.0
Fig. 35: ThermoTop EVO with SmarTemp Control 3.0 and 3.0 Bluetooth

Table of Contents

Other manuals for Webasto thermo top evo

Related product manuals