EasyManua.ls Logo

Winterhalter UF-L - Technical Specifications

Winterhalter UF-L
44 pages
Print Icon
To Next Page IconTo Next Page
To Next Page IconTo Next Page
To Previous Page IconTo Previous Page
To Previous Page IconTo Previous Page
Loading...
Technical data
40
17 Technical data
General Operating conditions
Voltage
see rating plate
Operating temperature
0 40 °C
Total connected load
Relative air humidity
< 95 %
Fuse protection
Storage temperature
> -10 °C
Minimum flow pressure
15.3
Maximum height of the
installation location above
sea level
3000 m
Maximum inlet pressure
Inlet water temperature
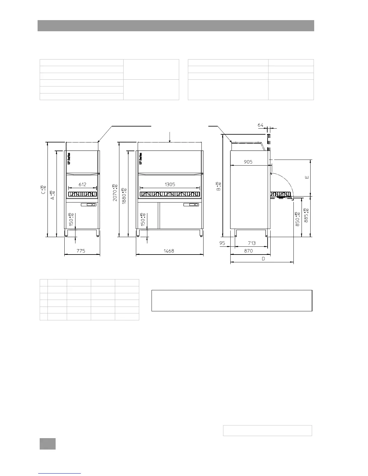
Dimensions
UF-M, UF-L
UF-XL
UF-M, UF-L, UF-XL
UF-M
UF-L
UF-XL
A
[mm]
1720
1880
——
B
[mm]
2000
2240
2240
C
[mm]
1910
2070
——
D
[mm]
1295
1375
1375
E
[mm]
640
800
800
18 Emissions
Noise
Occupational emission sound pressure level Leq < 70 dB(A)
Measurement uncertainty: K(pA): 4 dB
Exhaust air
Adhere to the VDI Guideline 2052 when designing the ventilation system.
19 Disposal
Contact your dealer so that the materials in the machine can be reused or disposed of in accordance with
local legislation.
89013832-01; 2017-01; Changes reserved
Ground clearance optional, also 200 mm instead of 150 mm.
The vertical dimensions then increase by 50 mm.
only with UF Energy

Other manuals for Winterhalter UF-L

Related product manuals