EasyManua.ls Logo

Wolf Ranges - Wolf Range Installation Dimensions

Wolf Ranges
88 pages
Print Icon
To Next Page IconTo Next Page
To Next Page IconTo Next Page
To Previous Page IconTo Previous Page
To Previous Page IconTo Previous Page
Loading...
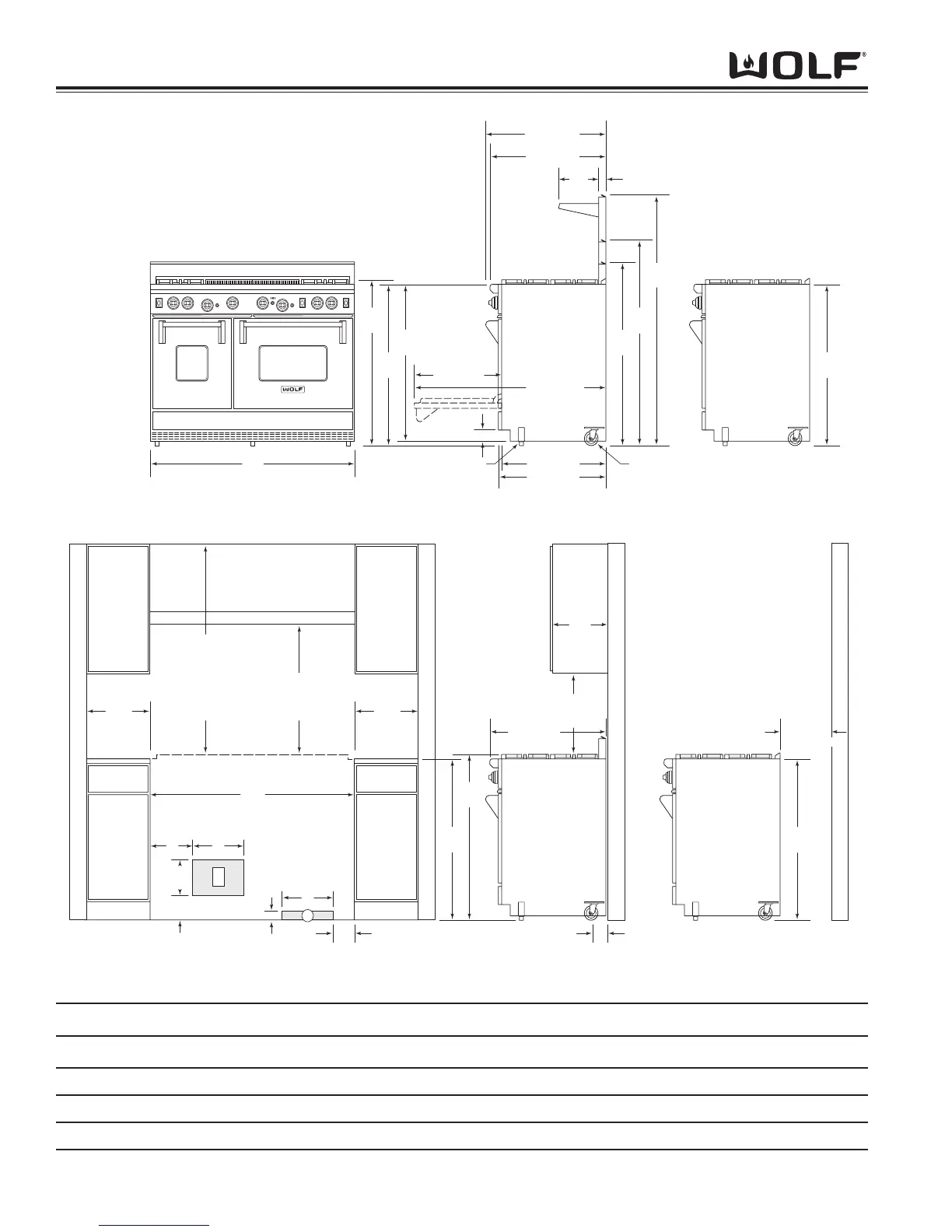
RANGES && RRANGETOPS
Installation Information
3-4
*30"min (762)
SURFACE BURNERS AND
GRIDDLE
*36"min (914)
CHARBROILER
*44"min (1118)
ALL 60" (1524) RANGES
30"(762) TO 36"(914)
COOKING SURFACE TO
BOTTOM OF
VENTILA
TION HOOD
VENTILATION HOOD
COMBUSTIBLE CONSTRUCTION
18"min (457)
TO COOKING
SURFACE
13"max
(330)
CABINET
DEPTH
**
LOCATION OF GAS SUPPLY EXTENDS
3" (76) ON FLOOR FROM BACK W
ALL
B
FINISHED ROUGH OPENING WIDTH
COOKING SURFAC
E
6"min
(152)
TO
COMBUSTIBLE
MA
TERIALS
6"min
(152)
TO
COMBUSTIBLE
MA
TERIALS
27
1
/4" (692)
E
G
E
D
5
1
/2"
(140)
5"
(127)
2"
(51)
3"
(76)
8"
(203)
NOTE: Dimensions in parentheses are in millimeters.
*
MINIMUM DISTANCE FROM COOKING SURFACE
TO BOTTOM OF COMBUSTIBLE CONSTRUCTION
36"max
(914)
37"
(940)
COOKING
SURFAC
E
36"
(914)
ISLAND INSTALLATION:
NO SIDE WALL OR REAR WALL
ABOVE COOKING SURFACE
PENINSULA INSTALLATION:
NO SIDE WALL ABOVE
COOKING SURFAC
E
***
12" (305) MINIMUM CLEARANCE TO
COMBUSTIBLE MATERIALS Ð
0" (0) TO NON-COMBUSTIBLE MATERIALS
***
ISLAND
INSTALLATION
LOCATION OF
ELECTRICAL
C
**
LOCATION OF
GAS SUPPLY
A
OVERALL WIDTH
35
1
/2"
(902)
36"
(914)
36"
(914)
37"
(940)
COOKING
SURFACE
ISLAND OR PENINSULA INSTALLA
TION
41
3
/4"
(1060)
5" (127)
RISER
10" (254)
RISER
20" (508)
RISER
46
3
/4"
(1187)
56
3
/4"
(1441)
2
1
/2"
(64)
27
1
/4" (692)
28
3
/8" (721)
O
VERALL DEPTH
25
1
/4"(641)
24
1
/2" (622)
3" (76) FRONT LEGS WITH
1" (25) HEIGHT ADJUSTMENT
REAR CASTERS ALLOW
1" (25) HEIGHT ADJUSTMENT
43
3
/8" (1102)
19
1
/8" (486)
9
1
/4"
(235)
1
3
/4"
(44)
30" Range 36" Range 48" Range 60" Range
A Overall Width of Range (width may vary to +
1
/
4
") 30"(762) 36"(914) 48"(1219) 60"(1524)
B Finished Rough Opening Width 30
1
/
4
"(768) 36
1
/
4
" (921) 48
1
/
4
"(1226) 60
1
/
4
"(1530)
C Location of Gas Supply (within shaded area) 12"(305) 10"(254) 12"(305) 12"(305)
D Location of Electrical 10"(254) 10"(254) 26"(660) 10"(254)
E Location of Electrical (within shaded area) 12”(305) 12"(305) 12"(305) 12"(305)
INSTALLATION DIMENSIONS
RANGES

Table of Contents

Related product manuals