EasyManua.ls Logo

Wolf Ranges - Wolf Rangetop Installation Dimensions

Wolf Ranges
88 pages
Print Icon
To Next Page IconTo Next Page
To Next Page IconTo Next Page
To Previous Page IconTo Previous Page
To Previous Page IconTo Previous Page
Loading...
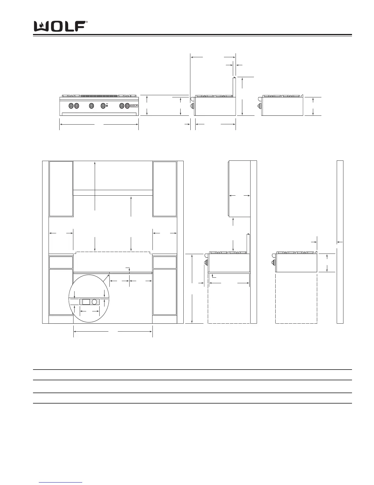
Installation Information
RANGES && RRANGETOPS
3-5
*30"min (762)
SURFACE BURNERS
AND GRIDDLE
*36"min (914)
CHARBR
OILER
30"(762) TO 36" (914)
COOKING SURFACE TO
BOTTOM OF
VENTILA
TION HOOD
VENTILATION HOOD
COMBUSTIBLE CONSTRUCTION
18"min (457)
TO COOKING
SURFACE
13"max
(330)
CABINET
DEPTH
B
FINISHED ROUGH OPENING WIDTH
COOKING SURFAC
E
6"min
(152)
TO
COMBUSTIBLE
MA
TERIALS
6"min
(152)
TO
COMBUSTIBLE
MA
TERIALS
NOTE: Dimensions in parentheses are in millimeters.
*
MINIMUM DISTANCE FROM COOKING SURFACE TO BOTTOM OF COMBUSTIBLE CONSTRUCTION
36"max
(914)
ISLAND INSTALLATION:
NO SIDE WALL OR REAR WALL
ABOVE COOKING SURFACE
PENINSULA INSTALLATION:
NO SIDE WALL ABOVE
COOKING SURFACE
**
12" (305) MINIMUM CLEARANCE TO
COMBUSTIBLE MATERIALS Ð
0" (0) TO NON-COMBUSTIBLE MATERIALS
**
ISLAND
INSTALLA
TION
9
1
/2" (241)
14"
(356)
C
LOCATE ELECTRICAL AND
GAS SUPPLY WITHIN
SHADED AREA THROUGH
BOTTOM OF PLA
TFORM
TOP VIEW
OF PLATFORM
E
G
C
3"
(76)
BACK WALL
1
/2"
(13)
24" (610)
2
3
/4"
(70)
3
/4" (19) PLATFORM
3
/4" (19) PLATFORM
A
OVERALL WIDTH
20"
(508)
10
1
/2" (267)
RISER
24" (610)
27
1
/4" (692)
OVERALL DEPTH
(to knobs)
10
1
/2" (267)
2
3
/4"
(70)
(to knobs)
COOKING
SURFAC
E
9
1
/2" (241) 9
1
/2" (241)
ISLAND OR PENINSULA
INSTALLA
TION
1
3
/4"
(44)
INSTALLATION DIMENSIONS
RANGETOPS
36" Rangetop 48" Rangetop
A Overall Width of Rangetop 36" (914mm) 48" (1219mm)
B Finished Rough Opening Width 36
1
/
4
" (921mm) 48
1
/
4
"
(1226mm)
C Location of Gas Supply and Electrical 8" (203mm) 16" (406mm)

Table of Contents

Related product manuals