EasyManua.ls Logo

Wolf Ranges - Page 68

Wolf Ranges
88 pages
Print Icon
To Next Page IconTo Next Page
To Next Page IconTo Next Page
To Previous Page IconTo Previous Page
To Previous Page IconTo Previous Page
Loading...
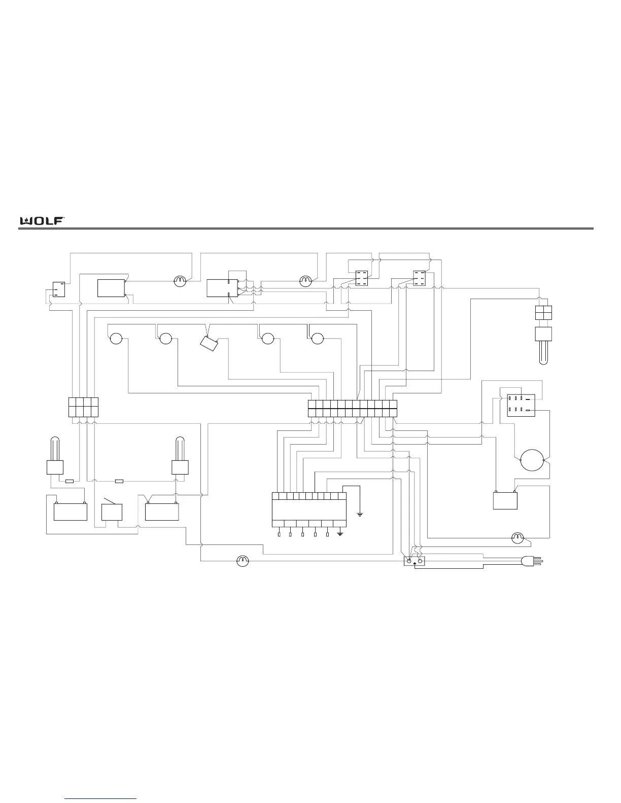
RRAANNGGEESS && RRAANNGGEETTOOPPSS
7-12
Wiring Diagrams
GRN (120)
12
9
4
8
5
1
14
13
RIGHT
OVEN SECTION
MANIFOLD PIPE SECTION
RIGHT OVEN
LEFT OVEN
THERMAL
VALVE
WHITE (77)
VALVE
THERMAL
SWITCH
DOOR
IGNITOR
RED (80)
BLUE (85)
BROWN (83)
LEFT OVEN
1049-R
2048-P
21
214
4
3
3
IGNITION
BROWN (35)
YELLOW (45)
RIGHT OVEN
BLUE (36)
BLACK (117)
RED (81)
MANIFOLD COVER SECTION
YELLOW (44)
LEFT
LIGHT
SWITCH
LEFT
BLACK (116)
REAR
LEFT
BLACK (105)
OVEN
L2
FRONT
LEFT
F/T
BROWN (84)
BLACK (106)
BLUE (95)
OVEN
RED (82)
WHITE (29)
L1
INDICATOR
LIGHT
LEFT
VALVE
WHITE (19)
WHITE (98)
GREEN
BLACK
WHITE
BACK PANEL SECTION
OVEN LIGHT
LEFT
WN
WHITE (12)
PURPLE (11)
WHITE (18)
GROUND
J -BOX
ORANGE (9)
WHITE (75)
RIGHT
OVEN LIGHT
N
3-CONDUCTOR
POWER CORD
W
PLUG
RED (42)
ORANGE (86)
BROWN (1)
BLUE (2)
YELLOW (7)
RED (8)
ORANGE (3)
19-09-2128 PLUG
19-09-1129 RECPT
WHITE (76)
ORANGE (37)
21
12
43
34
YELLOW (41)
BLACK (15)
BLACK (24)
MOLEX G-2
MOLEX G-1
9
9
56
56
78
78
11
11
10
10
12
12
PURPLE (10)
WHITE (27)
BLACK (112)
BR
BLACK (115)
BLACK (111)
REAR
RIGHT
BLACK (110)
C
L2
FRONT
RIGHT
BLACK (58)
WHITE (28)
(59)
BAL1
BLACK
LIGHT
RIGHT
INDICATOR
BLACK (113)
BLUE (64)
BLACK (114)
WHITE (25)
PURPLE (47)
RIGHT LIGHT
WHITE (26)
FAN
SWITCH
SWITCH
WHITE (21)
BROWN (60)
WHITE (20)
WHITE (22)
THERMAL
BROILER
MOTOR
60 HZ
115V
BLUE (62)
IGNITOR
BROILER
2028-P
1029-R
WHITE (66)
1 2
21
BLUE (65)
VIEWED FROM FRONT OF RANGE
11
FOR WIRING SIMPLICITY
S1 S2 S3 S5S4 S6
6 POINT SPARK MODULE
10 9 67854321
10-17-3111 PLUG
REAR
LFT
FRT
LFT F/T
FRT
RT
REAR
RT
FAN RELAY
T-STAT
T-STAT
R484F/R484F-LP

Table of Contents

Related product manuals