EasyManua.ls Logo

Wolf Ranges - Wolf Rangetop Wiring Diagrams

Wolf Ranges
88 pages
Print Icon
To Next Page IconTo Next Page
To Next Page IconTo Next Page
To Previous Page IconTo Previous Page
To Previous Page IconTo Previous Page
Loading...
RRAANNGGEESS && RRAANNGGEETTOOPPSS
7-20
Wiring Diagrams
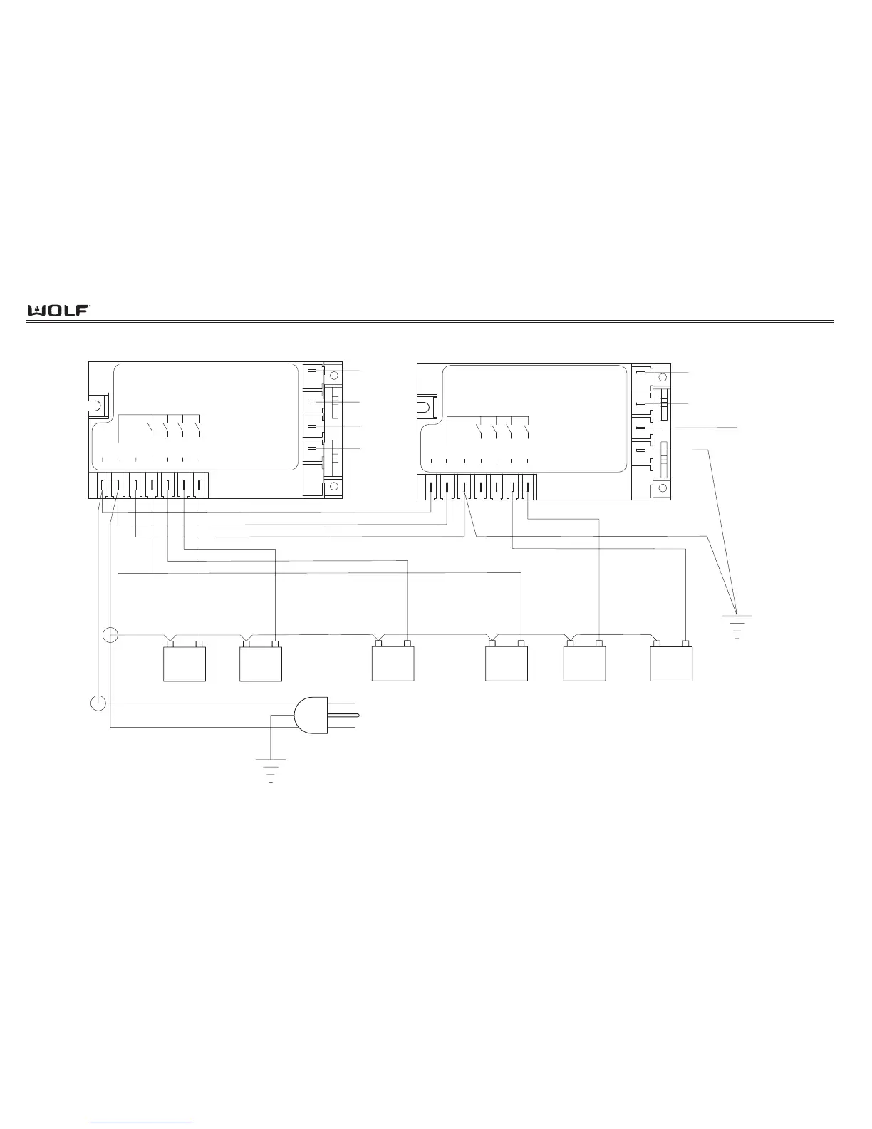
9
REIG 4
NEUT.
6
LINE
7
GND
811
REIG 2
10
REIG 3
LF
MR
MF
LR
REIG1
REIG2
REIG3
REIG4
REIG 1
12
76
NEUT.
LINE
GND
8910
REIG 4
REIG 3
11
12
REIG 2
REIG 1
REIG4
REIG2
REIG3
REIG1
RF
RR
GREEN (42)
WHITE (39)
BLACK (2)
BURNER
SWITCH
LEFT
SWITCH
LEFT
BURNER
FRONTREAR
SWITCH
REAR
MIDDLE
BURNER BURNER
SWITCH
FRONT
MIDDLE
SWITCH
RIGHT
REAR
BURNER
SWITCH
RIGHT
FRONT
BURNER
BROWN (9)
BLUE (10)
YELLOW (11)
RED (16)
ORANGE (17)
VIOLET (28)
BLACK (3) BLACK (4) BLACK (5)
BLACK (6)
BLACK (34)
GREEN (41)
GROUND
GREEN
BLACK (1)
BLACK (33)
BLACK
WHITE (38)
WHITE
LEFT SPARK MODULE
RIGHT SPARK MODULE
PLUG
RT366/RT366-LP

Table of Contents

Related product manuals