EasyManua.ls Logo

Xantrex Freedom XC PRO 3000

Xantrex Freedom XC PRO 3000
114 pages
To Next Page IconTo Next Page
To Next Page IconTo Next Page
To Previous Page IconTo Previous Page
To Previous Page IconTo Previous Page
Loading...
Basic Installation Procedures
24 Freedom XC PRO Owner's Guide
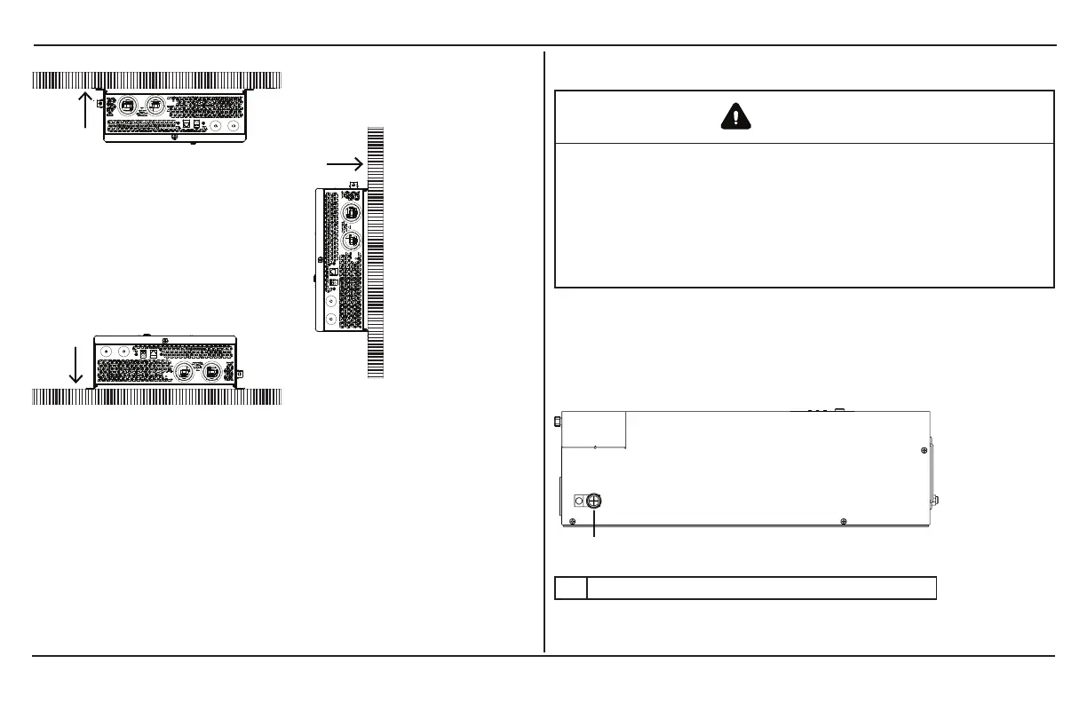
Figure 6 Approved Mounting Orientations
A
B
C
3. Mark the desired number of mounting holes on the wall by
placing the unit on the wall.
4. Pilot-drill the mounting holes.
5. Fasten the Freedom XC PRO to the mounting surface. If
you are mounting the unit on a wall or bulkhead, use #12 or
#14 pan-head wood or sheet metal screws to secure it to the
framing behind the wall or bulkhead. Alternatively, use nut
inserts and ¼"-20 machine screws.
Connecting the Equipment Ground
WARNING
ELECTRIC SHOCK HAZARD
Never operate the Freedom XC PRO without properly connecting
the equipment ground. A shock and energy hazard could result
from improper grounding.
Failure to follow these instructions can result in death, serious
injury, or equipment damage.
The Freedom XC PRO has a ground lug on the side of the unit as
shown in Connecting the Equipment Ground. Follow the
guidelines in Connecting the Equipment Ground to connect the
inverter/charger’s chassis to the ground.
Figure 7 DC Panel Connections
1
1 DC grounding lug

Table of Contents

Related product manuals