EasyManua.ls Logo

Xantrex Freedom XC PRO Series

Xantrex Freedom XC PRO Series
114 pages
To Next Page IconTo Next Page
To Next Page IconTo Next Page
To Previous Page IconTo Previous Page
To Previous Page IconTo Previous Page
Loading...
Marine Installation
46 Freedom XC PRO Owner's Guide
Marine Installation
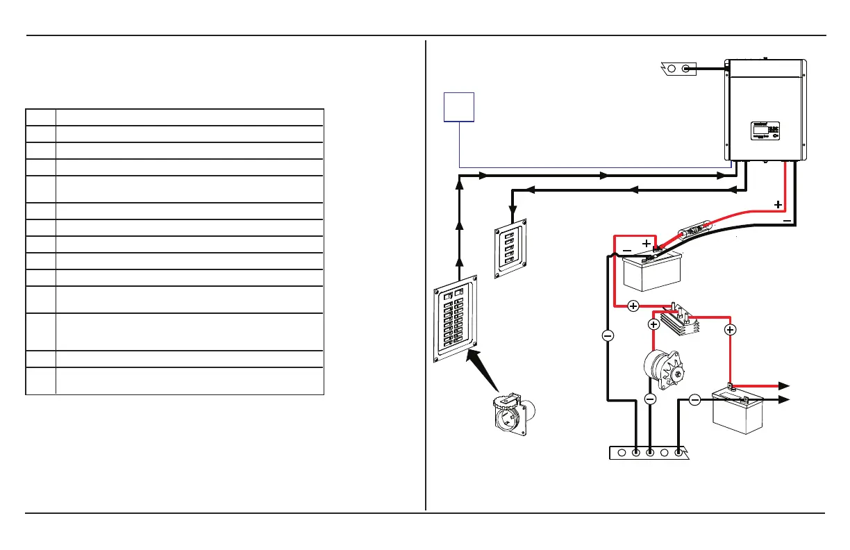
Figure 20 illustrates a typical marine installation with the following
components:
1 20-pin harness accessory
2 Equipment ground Engine negative bus / DC ground bus
3 Freedom XC PRO
4 DC fuse/disconnect/DC circuit breaker
5
12V deep cycle battery bank and protected by a DC fuse in the positive
cable
6 Battery isolator
7 DC alternator
8 To engine
9 Equipment ground Engine negative bus / DC ground bus
10 Starting battery
11
AC load panel with branch circuit breakers that supply only loads that run
off the Freedom XC PRO
12
AC source panel that includes a max 30A (Freedom XC PRO 2000), 50A
(Freedom XC PRO 3000), or a 20A (if using a GFCI) circuit breaker that
supplies the Freedom XC PRO
13 Shore power AC power supplied from a shore power connector
Not
shown
Drip shield (see next page)
Figure 20 Typical Marine Installation
1
11
13
12
3
5
4
10
8
9
7
6
2

Table of Contents

Related product manuals