EasyManua.ls Logo

Xantrex Freedom XC PRO Series - Side Panel

Xantrex Freedom XC PRO Series
114 pages
Print Icon
To Next Page IconTo Next Page
To Next Page IconTo Next Page
To Previous Page IconTo Previous Page
To Previous Page IconTo Previous Page
Loading...
Side Panel
975-0799-01-01 11
Side Panel
1 2
4 3
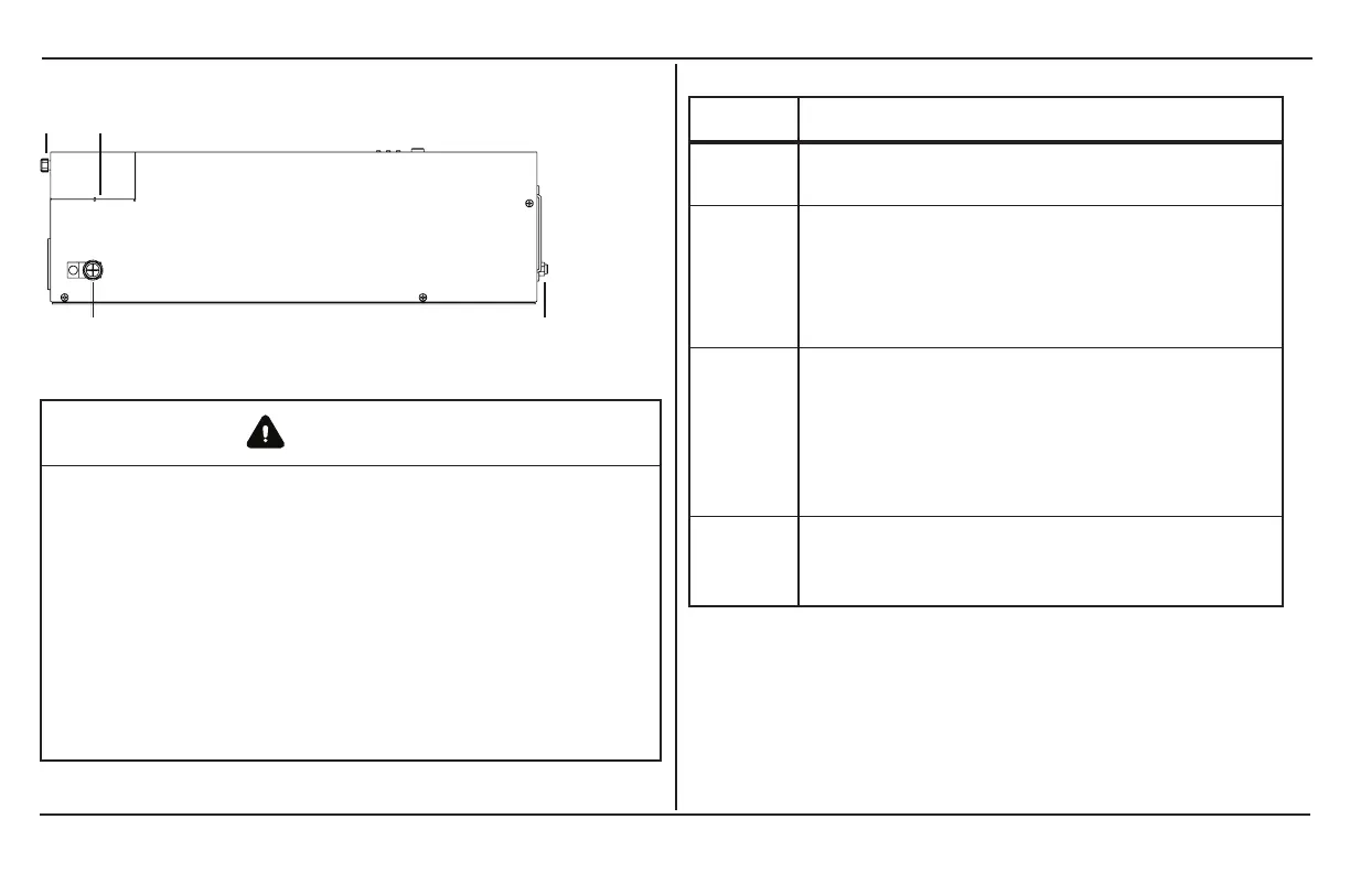
Figure 4 Side Panel
WARNING
ELECTRICAL SHOCK HAZARD
l
Use a torque screwdriver to tighten the captive nut panel
screw to 5in-lb torque to ensure a proper ground connection
and a required tool access to the wiring compartment.
l
Use a torque screwdriver to tighten the bolt on the DC ground
lug to a torque of 23 in-lb (2.6 N-m) of force.
l
Apply an anti-corrosion compound to the copper wire prior to
connecting to the DC ground lug.
Failure to follow these instructions can result in death, serious
injury, or equipment damage.
Feature Description
1
Captive nut panel screw holds the wiring
compartment cover in place. See WARNING above.
2
Wiring compartment cover protects the wiring
compartment from debris and keeps the cables
secure. Using the captive nut panel screw, the cover
can be opened and lifted out during wiring. See
WARNING on the left.
3
20 A supplementary protector with reset button
provides overload protection for the Freedom XC
PRO GFCI Kit (PN: 808-9817) (sold separately)
option. Press to recover from an overload condition.
In a hard wired installation, the supplementary
protector does not protect output wiring.
4
Grounding lug provides a ground path for the
Freedom XC PRO chassis to the DC system ground.
See WARNING.
Table 4Side Panel Features

Table of Contents

Related product manuals