EasyManua.ls Logo

Xantrex Freedom XC PRO Series - AC;DC and GFCI Panel

Xantrex Freedom XC PRO Series
114 pages
Print Icon
To Next Page IconTo Next Page
To Next Page IconTo Next Page
To Previous Page IconTo Previous Page
To Previous Page IconTo Previous Page
Loading...
AC/DC and GFCI Panel
975-0799-01-01 7
Program Item Default Setting
Setting
23
Custom float
voltage
13.5 volts DC
13.5
24
Charger current 80 amps DC
80
25
Charger
algorithm
2-stage
3-stage
2-stg
3-stg
26
Charger ignition
control
Off
Off
27
Equalize charge
for flooded
battery type
Disabled
dis
28
AC input breaker 30 amps
30
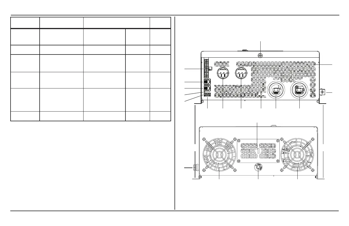
AC/DC and GFCI Panel
4
1
5
15 16
17
16
6
14
789
2
10
9
11
12
13
3
3
17
Figure 2 AC/DC and GFCI Panel

Table of Contents

Related product manuals