EasyManua.ls Logo

Xantrex RS3000 - Selecting RS3000 Menus

Xantrex RS3000
66 pages
Print Icon
To Next Page IconTo Next Page
To Next Page IconTo Next Page
To Previous Page IconTo Previous Page
To Previous Page IconTo Previous Page
Loading...
Installation
975-0171-01-01 39
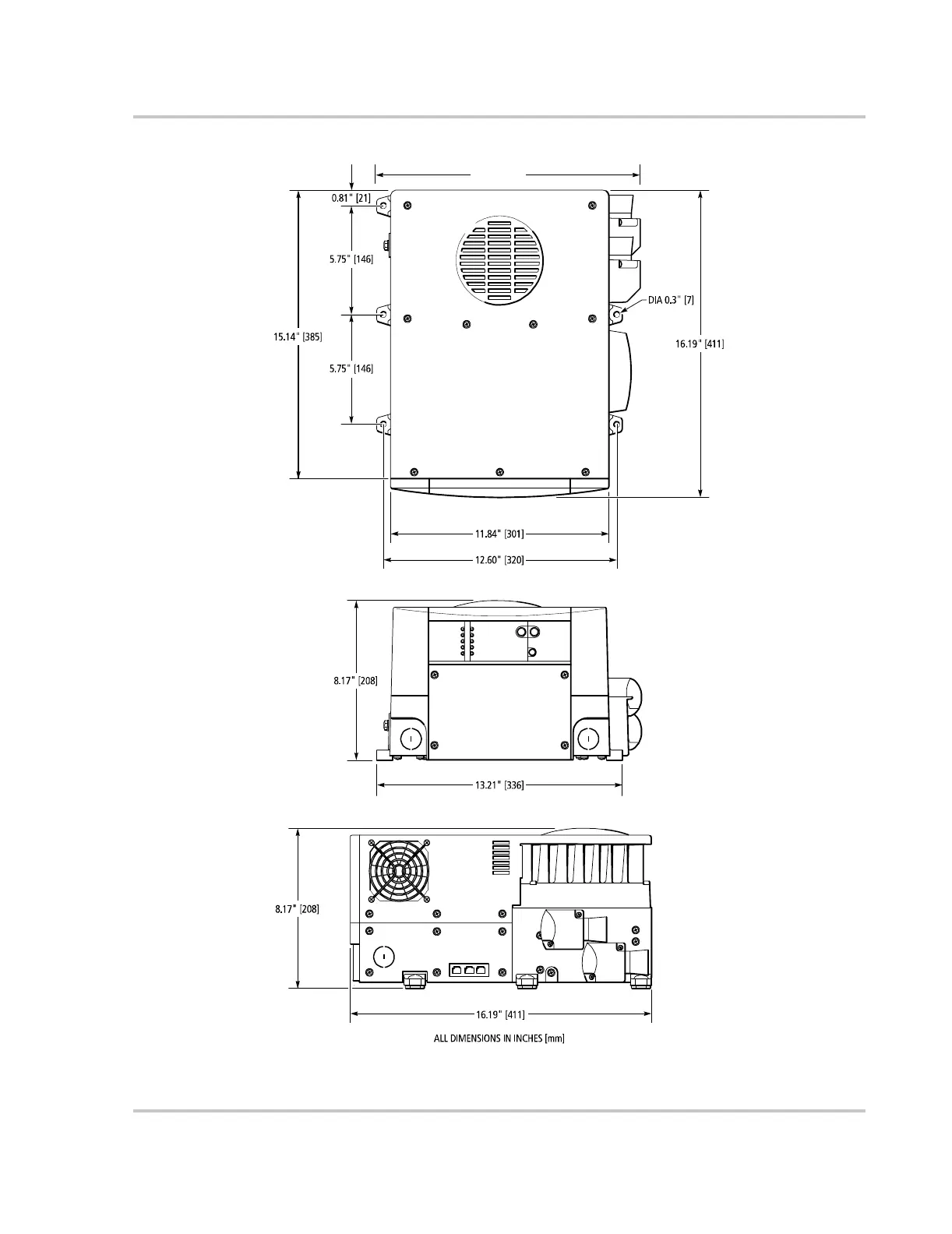
Figure 15
Inverter/Charger Dimensions
14.2" [361]

Table of Contents

Other manuals for Xantrex RS3000

Related product manuals