EasyManua.ls Logo

Xycom 9462 - Video Port; Back Panel

Default Icon
87 pages
Print Icon
To Next Page IconTo Next Page
To Next Page IconTo Next Page
To Previous Page IconTo Previous Page
To Previous Page IconTo Previous Page
Loading...
9460/9460KP/9462/9462KP System Manual
3-6
Feature Description
Video Port The video port is a 15-pin D-sub VGA connector at the side of the unit. This connector
supports any standard VGA connection. The video port is shipped disabled. This port is
active if an LCD flat panel is not connected. A jumper can be used to switch between
the VGA port and the LCD flat panel. To use both a video display on the video port and
the flat-panel display, you must enable “Simultaneous Video” on the Advanced Menu in
the BIOS setup. Refer to the CPU manual for details.
Note
: The 9460/9462 does not support simultaneous flat panel and CRT with an STN
passive flat-panel display.
Ethernet Port
(optional)
This port provides a 10BASE-T/100BASE-TX autosensing Ethernet connection.
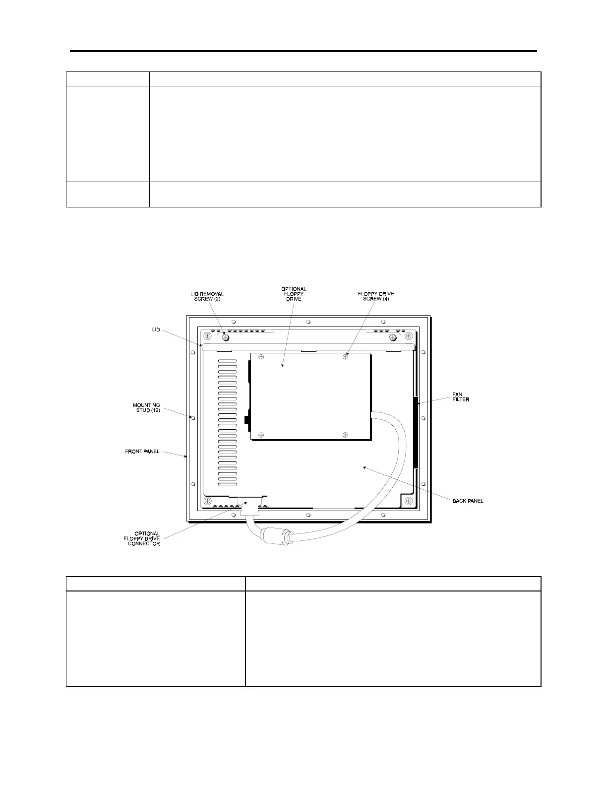
Back Panel
Figure Chapter 3 -4 illustrates the back panel features.
Figure Chapter 3 -4. System Back Panel
Feature Description
Fasteners There are two protruding captive screws (lid removal screws)
along the top of the back panel. Loosen these screws to remove
the lid. There are four flush captive screws located across the
top and bottom of the back panel. Loosen these screws (using a
Phillip-head screwdriver) to remove the front panel.
Note
: If your system has a touch screen, disconnect the touch
screen cable from the CPU board before removing the back of
the system from the front bezel.

Table of Contents

Related product manuals