EasyManua.ls Logo

Xycom 9462 - Front Connector Access

Default Icon
87 pages
Print Icon
To Next Page IconTo Next Page
To Next Page IconTo Next Page
To Previous Page IconTo Previous Page
To Previous Page IconTo Previous Page
Loading...
9460/9460KP/9462/9462KP System Manual
3-12
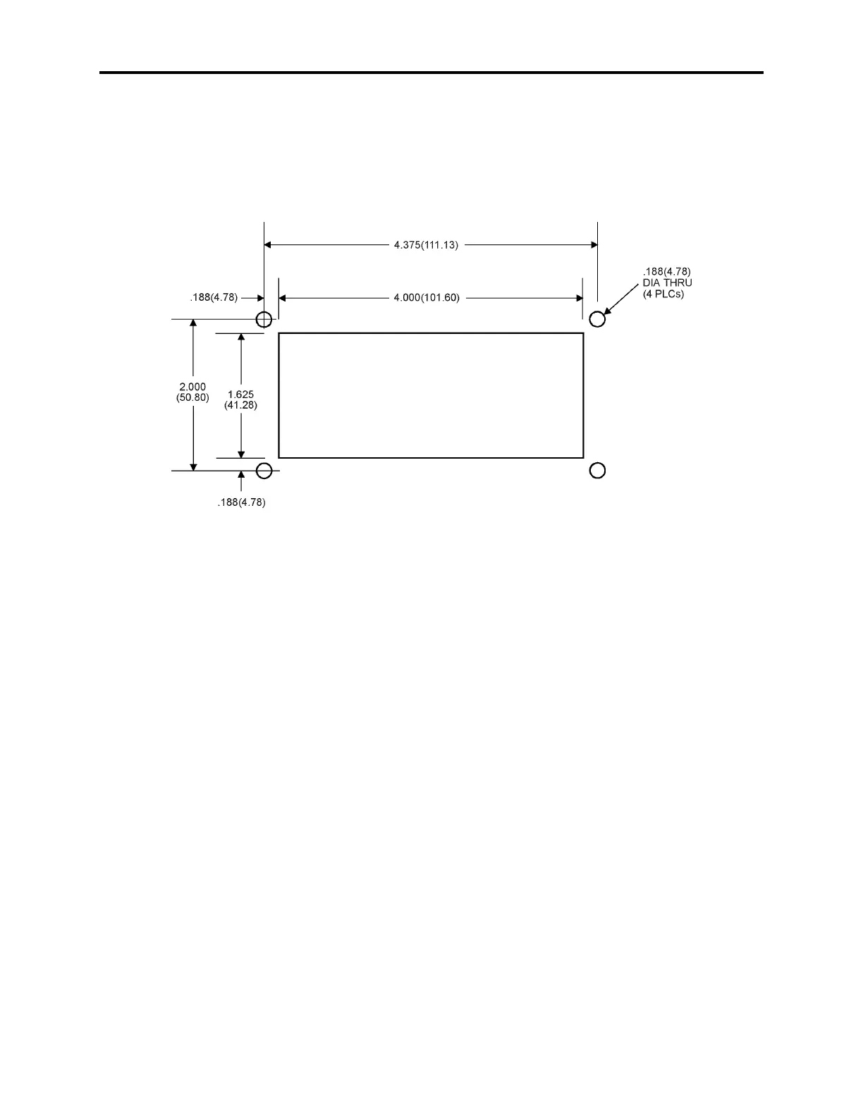
Front Connector Access
If you wish to access the keyboard and external floppy connectors from the front of the
computer module, you must install the 9000-FKA kit.
Figure Chapter 3 -9 provides cutout dimensions for the 9000-FKA (optional front con-
nector option).
Figure Chapter 3 -9. Front Mounted Connectors Cutout Dimensions

Table of Contents

Related product manuals